Villa in vendita - 6815 Melide
Perché amerai questa proprietà
Vista lago mozzafiato
Accesso al molo privato
Interni personalizzabili
Organizza una visita
Prenota una visita con The oggi!
OFFRIAMO IN VENDITA una nuova e grande villa moderna di 400 m2 con grande terrazza, giardino e molo privato. Possibilità di scegliere l'arredamento interno! Consegna in 4 mesi!
La villa è disposta su 3 livelli collegati da un ascensore interno e si divide come segue:
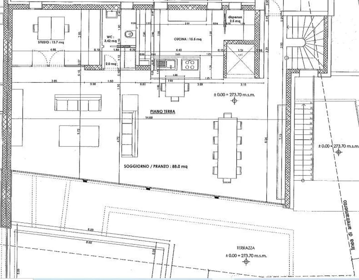
PIANO TERRA di 150m2:
- Ingresso,
- Ampio soggiorno con accesso alla veranda di 50 m² e al giardino,
- Grande cucina abitabile;
- Studio;
- 2 bagni;
- Armadio.
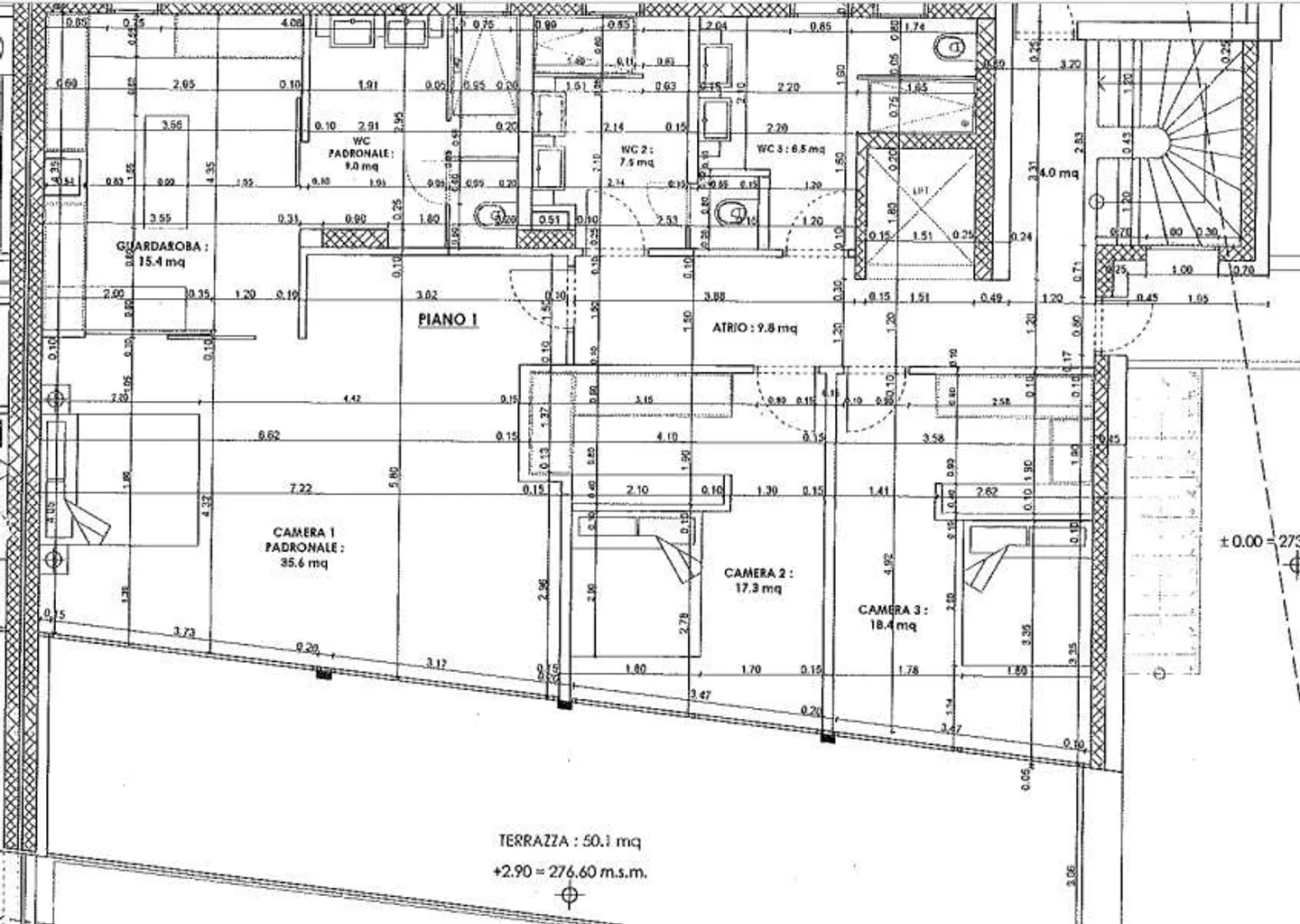
PRIMO PIANO di 150m2:
- Camera matrimoniale con cabina armadio, bagno privato e ac...
Dettagli immobile
- Disponibile dal
- Su accordo
- Stanze
- 7
- Bagni
- 6
- Anno di costruzione
- 2024
- Superficie abitabile
- 400 m²
- Superficie giardino
- 200 m²
- Superficie terrazza
- 50 m²



