Casa grotta in vendita - 6777 Quinto
Perché amerai questa proprietà
Gioiello architettonico di Boschetti
Vicino alla Gottardo Arena
Atmosfera di villaggio autentica
Organizza una visita
Prenota una visita con Cristina oggi!
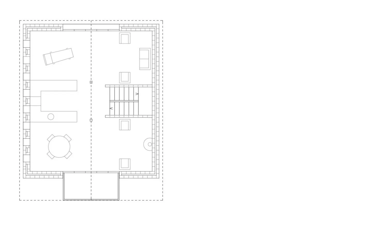
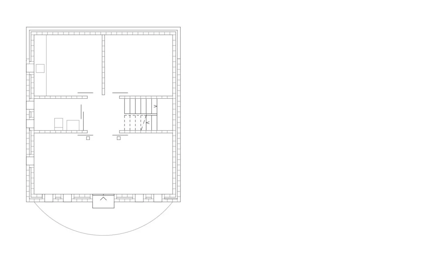
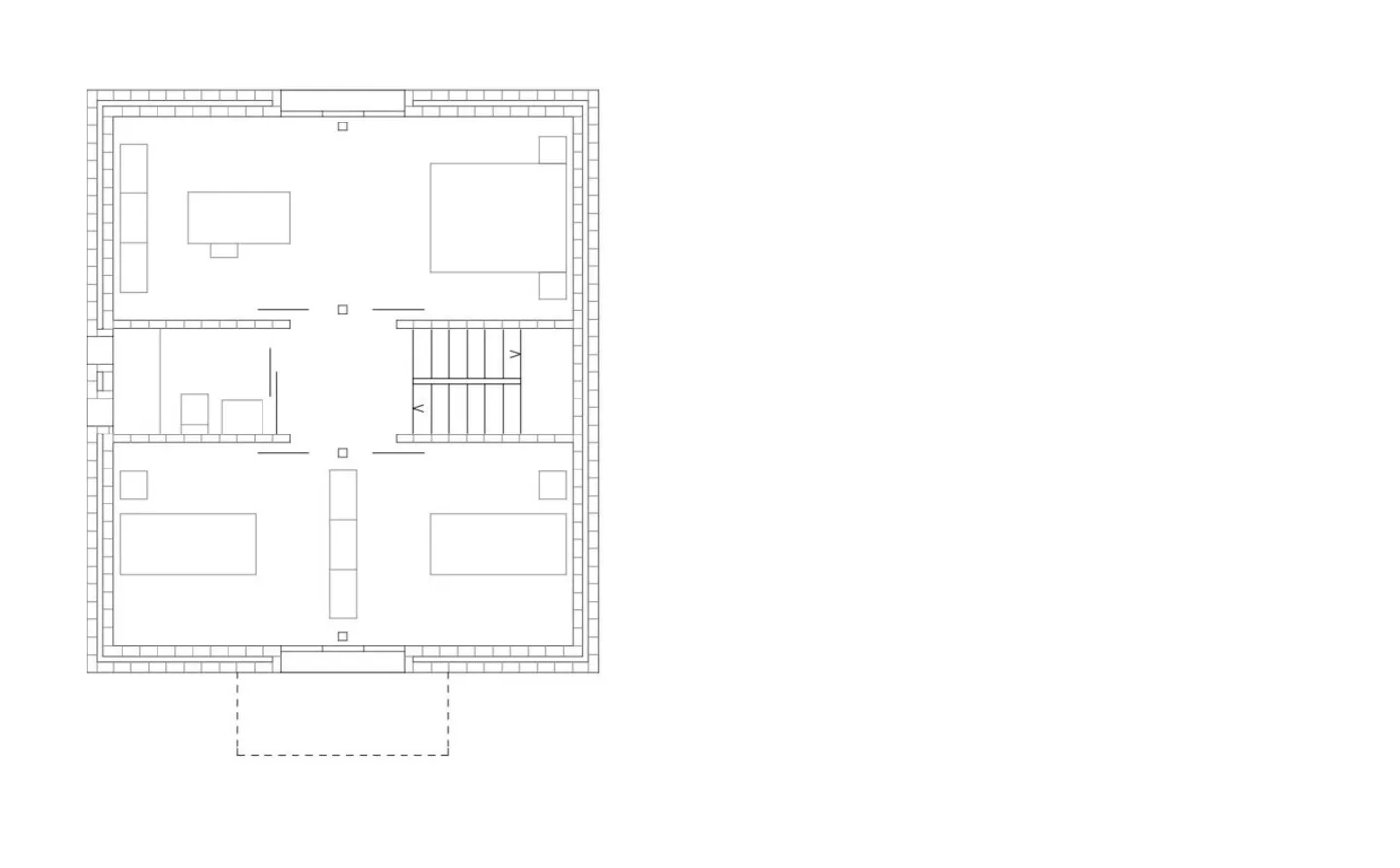
AMBRI – Vendiamo casa unifamiliare contemporanea nel nucleo storico
Casa Prada è una casa unifamiliare firmata dall'architetto ticinese Pietro Boschetti, figura di riferimento dell'architettura in Ticino e autore di diverse opere pubblicate e studiate a livello accademico.
Situata nel cuore del nucleo di Ambrì, a pochi minuti dalla nuova Gottardo Arena – casa della storica squadra di hockey HC Ambrì-Piotta – rappresenta un raro esempio di architettura contemporanea capace di dialogare con il tessuto rurale tradizionale.
Casa Prada sorge nel nucleo tradizionale ...
Dettagli immobile
- Disponibile dal
- 30.04.2026
- Stanze
- 5
- Bagni
- 2
- Anno di costruzione
- 1984
- Anno di ristrutturazione
- 2007
- Superficie abitabile
- 220 m²
- Superficie terreno
- 72 m²




