Casa grotta in vendita - 6763 Osco
Perché amerai questa proprietà
Giardino privato
Soggiorno open space
Impianto solare incluso
Organizza una visita
Prenota una visita oggi!
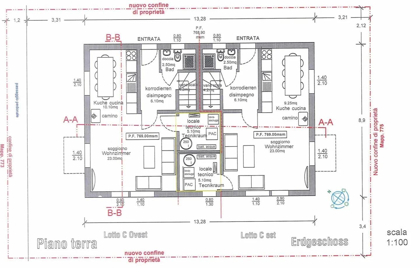
NUOVA COSTRUZIONE A FAIDO CASA BIFAMILIARE 4,5 LOCALI CON GIARDINO E VISTA MONTAGNA
Allinterno di una nuova operazione immobiliare composta da sole tre unità abitative, proponiamo in vendita una casa bifamiliare, con consegna prevista entro fine 2025.Ogni abitazione disporrà di posteggi esterni di proprietà e sarà garantita una distanza di oltre 6 metri tra le proprietà, a tutela della privacy e della qualità dellabitare.
La proprietà, (LOTTO A) immersa nel verde e con ottima esposizione solare, offre una splendida vista aperta sulla montagna, ed è perfetta per famiglie o come...
Dettagli immobile
- Disponibile dal
- Su accordo
- Stanze
- 4.5
- Anno di costruzione
- 2025
- Superficie abitabile
- 118 m²
- Superficie utilizzabile
- 168 m²
- Superficie terreno
- 350 m²



