Casa singola in vendita - 6763 Osco
Perché amerai questa proprietà
Vista montagna mozzafiato
Giardino privato tranquillo
Costruzione di alta qualità
Organizza una visita
Prenota una visita oggi!
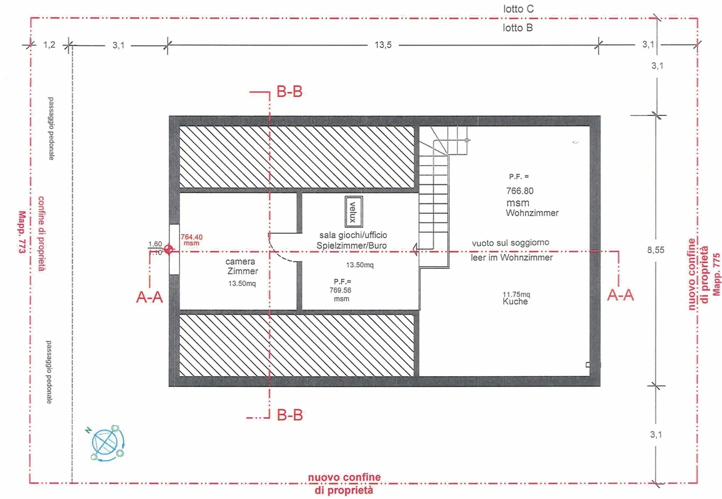
«NUOVA COSTRUZIONE A FAIDO – CASA UNIFAMILIARE 4,5 LOCALI CON GIARDINO E VISTA MONTAGNA»
All'interno di una nuova operazione immobiliare composta da sole tre unità abitative, proponiamo in vendita una casa unifamiliare indipendente, con consegna prevista entro fine 2025.
Ogni abitazione disporrà di posteggi esterni di proprietà e sarà garantita una distanza di oltre 6 metri tra le proprietà, a tutela della privacy e della qualità dell'abitare.
La proprietà, (LOTTO A) immersa nel verde e con ottima esposizione solare, offre una splendida vista aperta sulla montagna, ed è perfetta per f...
Dettagli immobile
- Disponibile dal
- Su accordo
- Stanze
- 4.5
- Anno di costruzione
- 2025
- Superficie abitabile
- 142 m²
- Superficie terreno
- 350 m²



