Castello in vendita - 6760 Faido
Perché amerai questa proprietà
Posizione centrale soleggiata
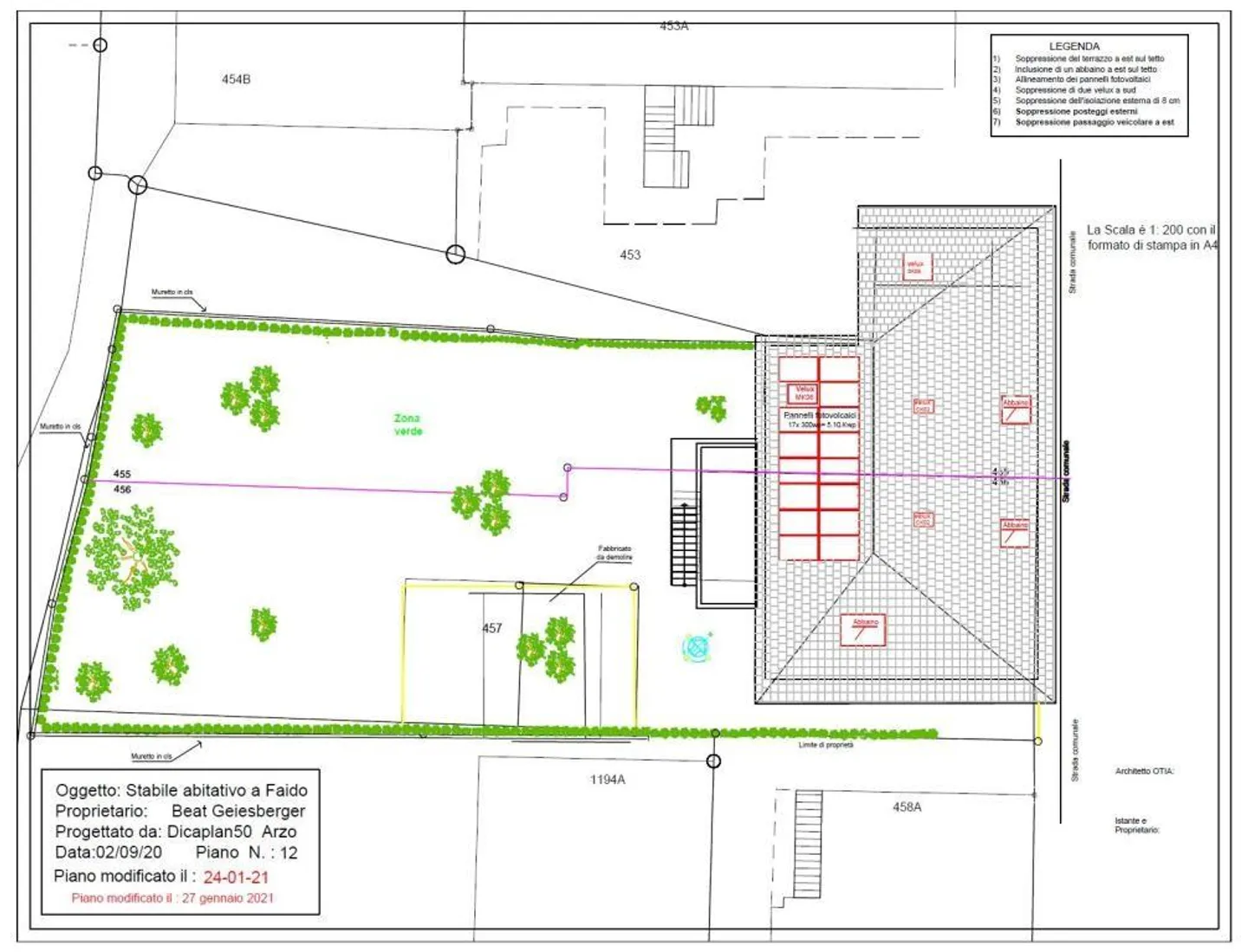
Grande giardino con vista
Appartamenti ristrutturati disponibili
Organizza una visita
Prenota una visita oggi!
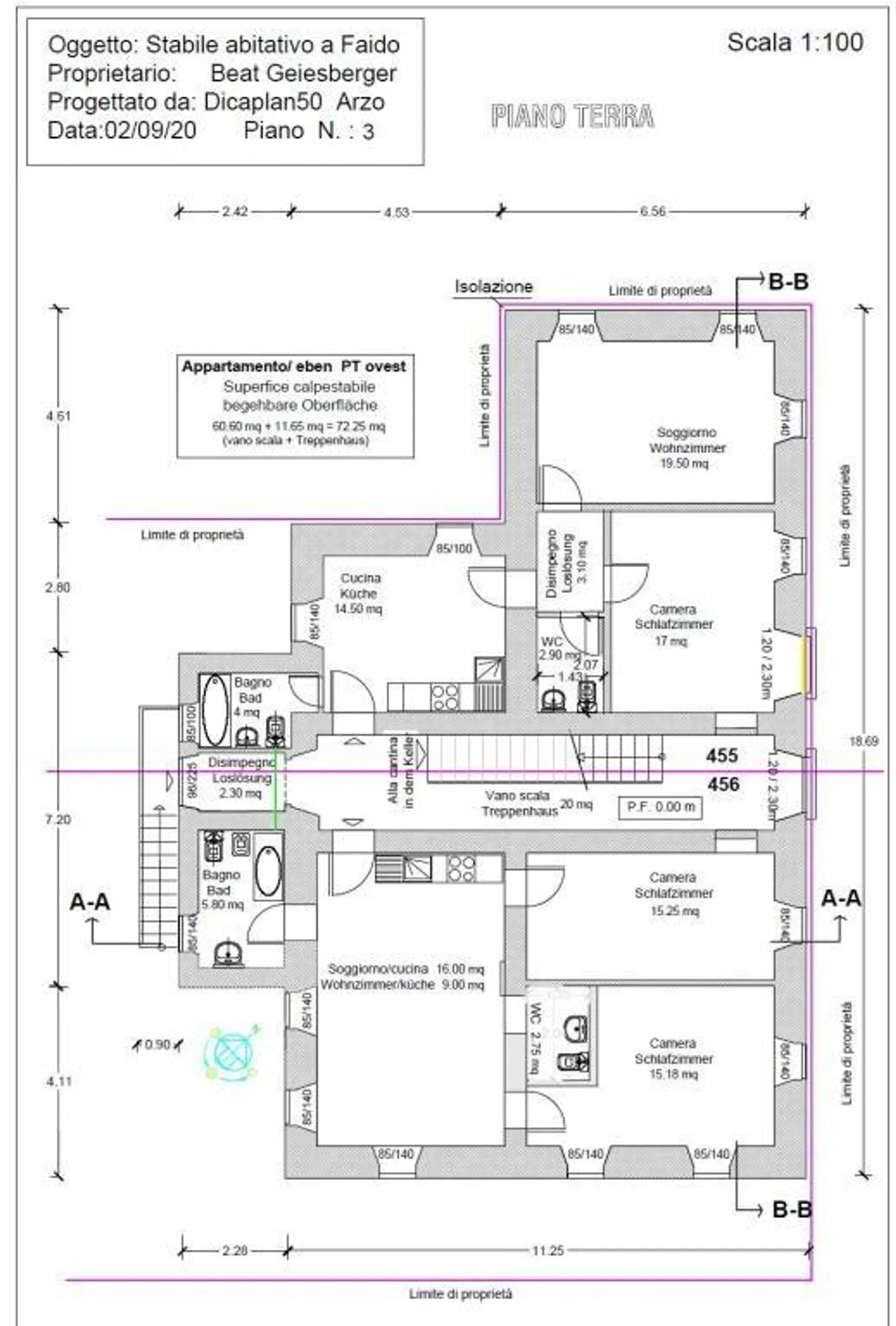
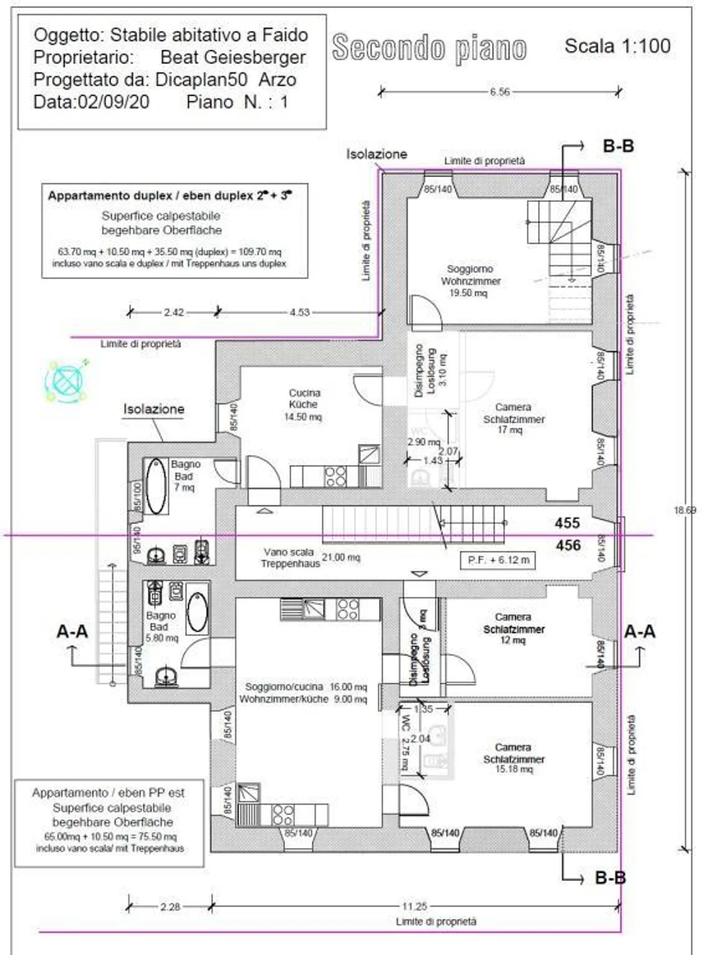
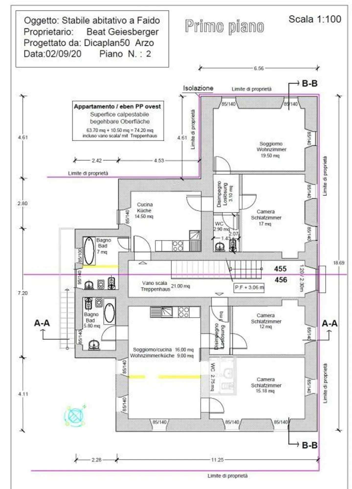
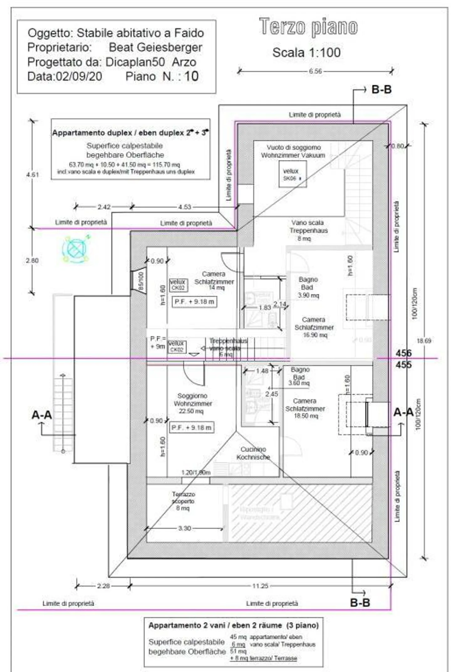
«casa plurifamiliare di 7 appartamenti da risturutturare con licenza edilizia»
6760 Faido, via canton lucerna 8Regione: LeventinaSuperficie terreno: ca. 737m2Superficie abitabile: ca. 600m2piani: 5Condizione: parzialmente rinnovatoCasa secondaria: da verificareParcheggi: pubblici nelle vicinanzePosizione: soleggiata e centralissimaVista: bella vistaScuole: siAcquisti: 200mTrasporto pubblico: 10mDistanza dalla città più vicina: 30mDistanza dall´autostrada: 2kmDescrizione dell'immobileQuesto condominio con 7 appartamenti si trova in una posizione molto centrale e soleggiata ...
Dettagli immobile
- Disponibile dal
- Su accordo
- Superficie terreno
- 737 m²



