Casa singola in vendita - 6647 Mergoscia
Perché amerai questa proprietà
Vista lago mozzafiato
Posizione tranquilla e soleggiata
Terreno completamente servito
Organizza una visita
Prenota una visita oggi!
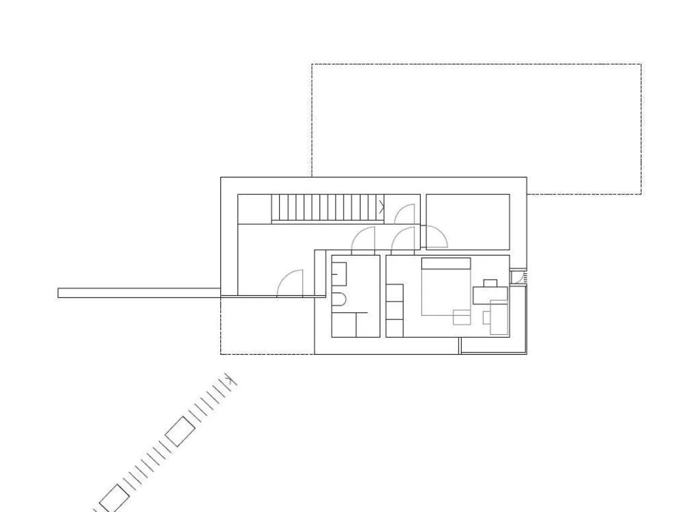
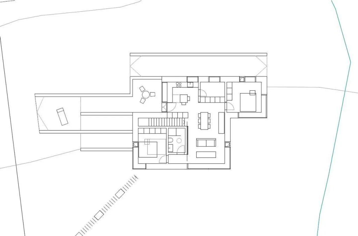
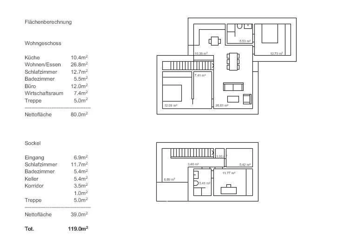
Progetto di costruzione per villa di 3 1/2 locali
Questo terreno edificabile si trova in posizione panoramica molto tranquilla e soleggiata sotto il nucleo di Mergoscia sopra Tenero/Contra a ca. 700 m s/m. La parcella é situata in zona edificabile a due piani. Lo sfruttamento ammonta al 0.3 e l'occupazione é del 25 %. In quanto altezza massima di costruzione sono permessi 7.5 m con una distanza dal confine di 4 m. Il terreno é dotato di tutti gli allacciamenti quali acqua, corrente, canalizzazione ed accesso. Esiste un progetto per la costruzio...
Dettagli immobile
- Disponibile dal
- Su accordo
- Stanze
- 3.5
- Superficie abitabile
- 100 m²
- Superficie terreno
- 477 m²



