Casa bifamiliare in vendita - 6526 Prosito
Perché amerai questa proprietà
Cucina aperta con terrazza
Finiture di alta qualità
Interni personalizzabili
Organizza una visita
Prenota una visita con Area oggi!
Edificio residenziale con due unità in costruzione a Prosito
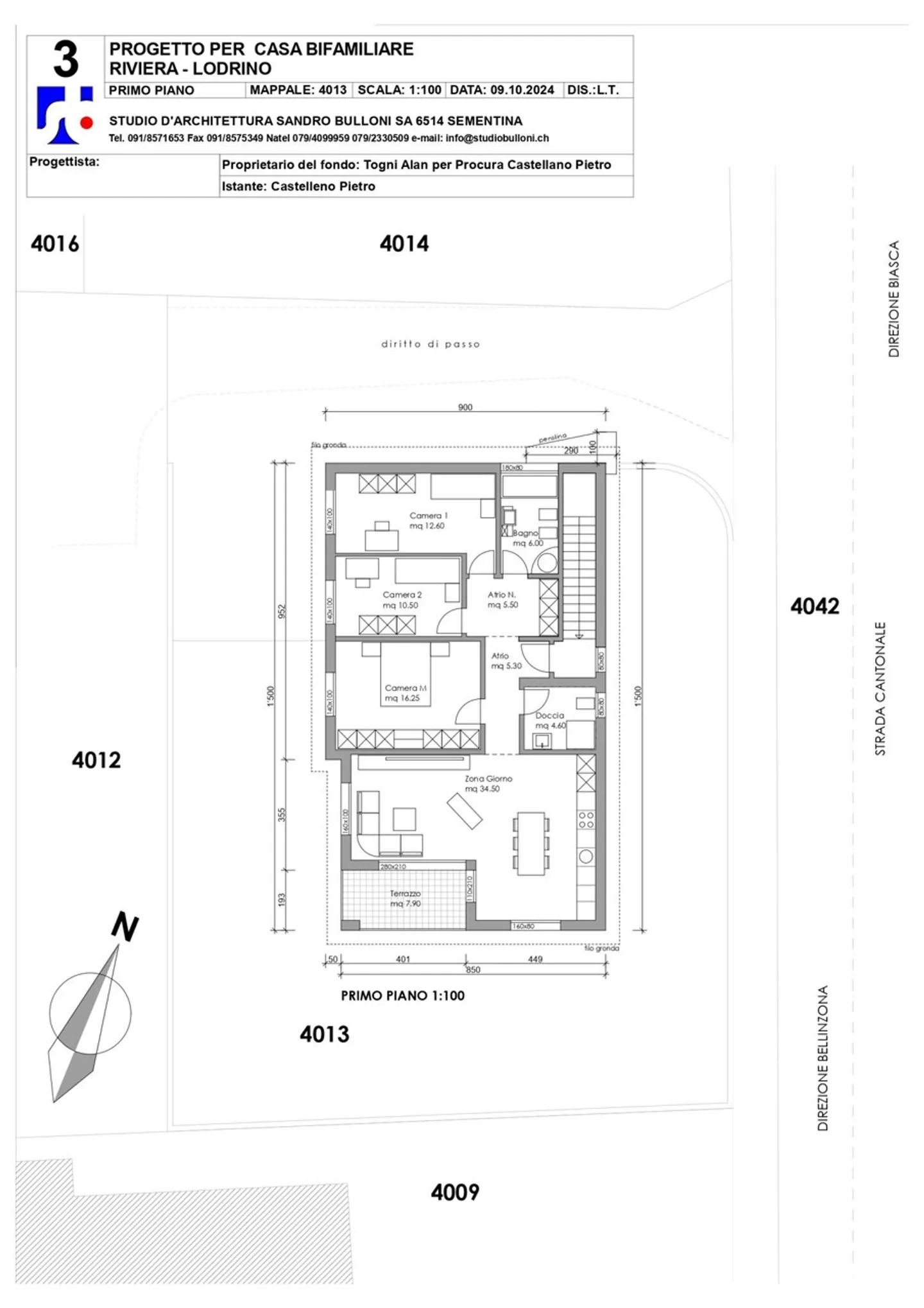
Offriamo in vendita una bellissima casa bifamiliare di nuova costruzione a Lodrino-Prosito, composta da due unità abitative indipendenti progettate per comfort, funzionalità e privacy.
La proprietà si trova in una posizione strategica, ben collegata ai mezzi pubblici e ai principali servizi come scuole, ufficio postale, banca, negozi e servizi medici, pur trovandosi in una zona residenziale tranquilla.
Al piano terra si trova un appartamento di 2,5 locali, composto da un ingresso che conduce alla ...
Dettagli immobile
- Disponibile dal
- 05.03.2026
- Stanze
- 7
- Anno di costruzione
- 2026
- Superficie abitabile
- 210 m²
- Superficie utilizzabile
- 210 m²
- Superficie terreno
- 477 m²



