Casa singola in vendita - 6525 Gnosca
Perché amerai questa proprietà
Cucina moderna rinnovata 2023
Ampio locale hobby
Grande giardino e terrazza
Organizza una visita
Prenota una visita con Pedruzzi oggi!
Casa unifamiliare con giardino a gnosca
Grande casa monofamiliare edificata in zona tranquilla e soleggiata nel 2003, disposta su 4 livelli, in buone condizioni (la manutenzione è stata eseguita regolarmente / la cucina è stata completamente rinnovata nel 2023).
I punti di forza della casa sono i locali con un'ampia metratura, il numero dei locali e dei servizi e il grande giardino; oggetto ideale per famiglie.
L'abitazione è così composta:
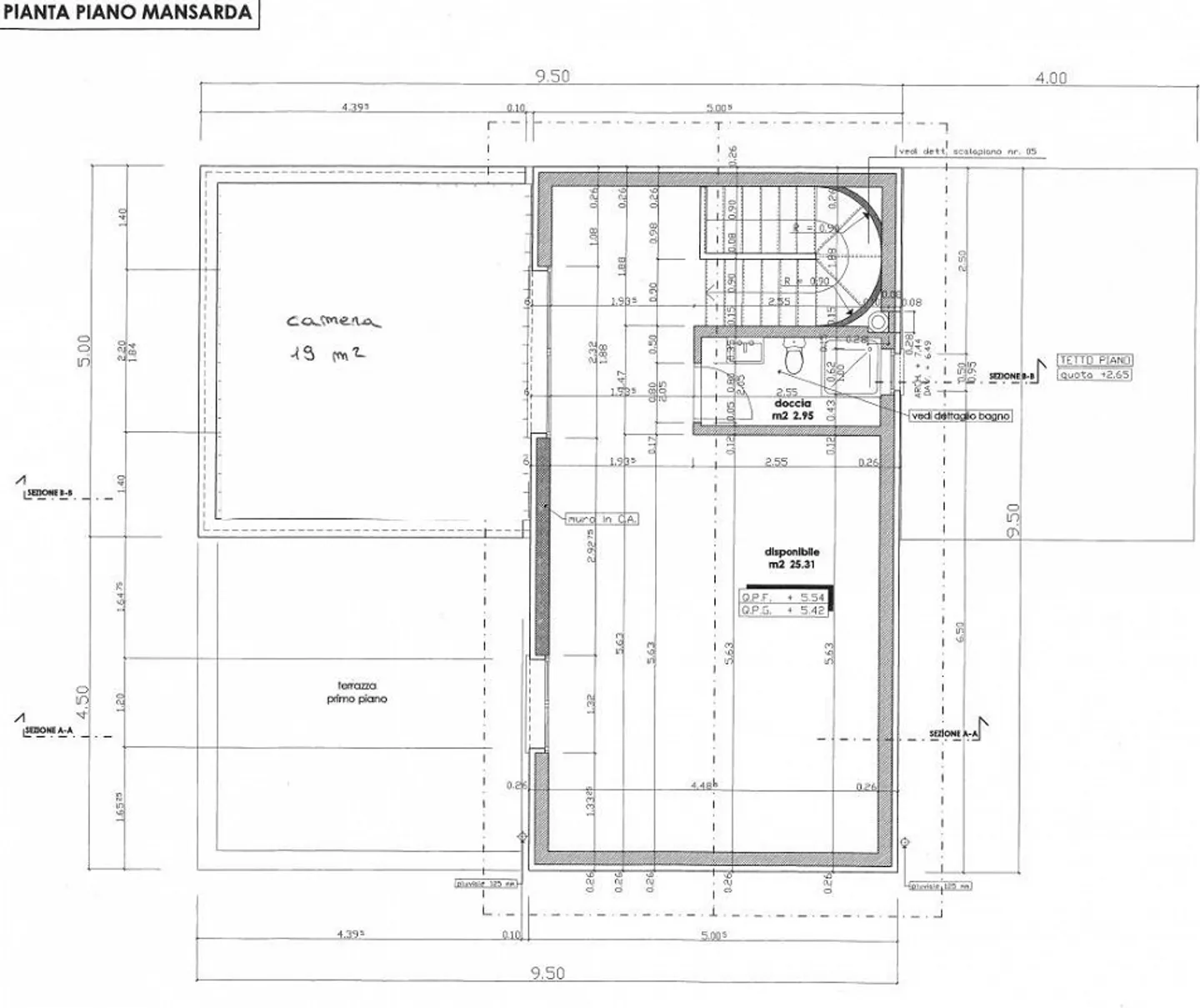
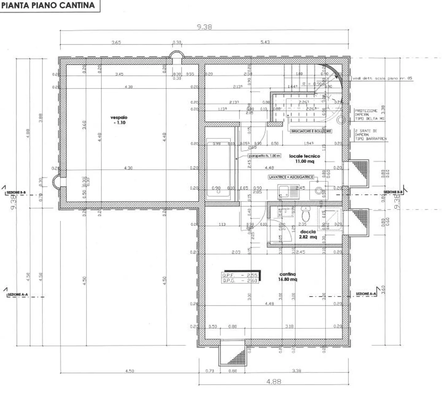
Piano cantina:
Grande locale hobby
Lavanderia
Sauna
Bagno
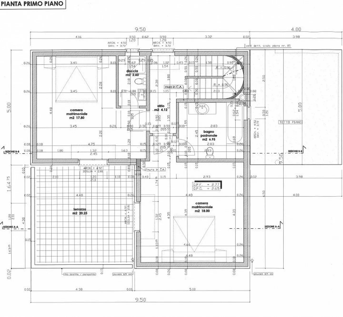
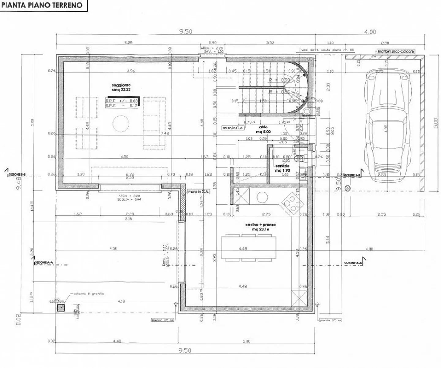
Piano Terra:
Soggiorno con veranda e accesso a...
Dettagli immobile
- Disponibile dal
- Su accordo
- Stanze
- 6
- Anno di costruzione
- 2003
- Anno di ristrutturazione
- 2023
- Superficie abitabile
- 158 m²
- Superficie terreno
- 442 m²
- Volume dell'edificio
- 860 m³



