Casa a schiera in vendita - 6516 Cugnasco
Perché amerai questa proprietà
Ampia terrazza coperta
Grande giardino soleggiato
Design architettonico moderno
Organizza una visita
Prenota una visita oggi!
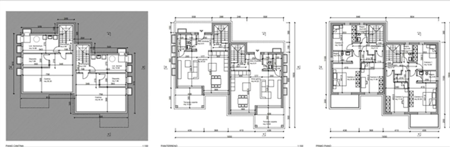
«casa a schiera in fase di costruzione con ampio giardino / reihenhaus im bau mit grossem garten»
Questa casa monofamiliare a schiera, in fase di costruzione, è ubicata nel Comune di Cugnasco-Gerra in un contesto residenziale costituito da ville e villette. Si trova in un''ottima posizione a sud in zona tranquilla e soleggiata tutto l''anno, lontana dal traffico ma comunque facilmente accessibile ai centri scolastici e ai trasporti pubblici.Nelle immediate vicinanze si trovano numerosi centri commerciali, posta, banche, farmacie e tutti i servizi che rendono confortevole lo stile di vita quo...
Dettagli immobile
- Disponibile dal
- Su accordo
- Stanze
- 4.5
- Anno di costruzione
- 2023
- Superficie abitabile
- 158 m²
- Superficie terreno
- 376 m²



