Casa singola in vendita - Im Chrüzacher 6, 8174 Stadel b. Niederglatt
Perché amerai questa proprietà
Giardino incantevole
Funzioni di casa intelligente
Ampio garage per 3 auto
Organizza una visita
Prenota una visita con Vetter oggi!
Casa unifamiliare di 5,5 stanze molto ben tenuta con bellissimo giardino
Casa unifamiliare di 5,5 stanze molto ben tenuta con bellissimo giardino
Casa unifamiliare attraente di 5,5 stanze in una posizione tranquilla a Stadel vicino a Niederglatt ZH
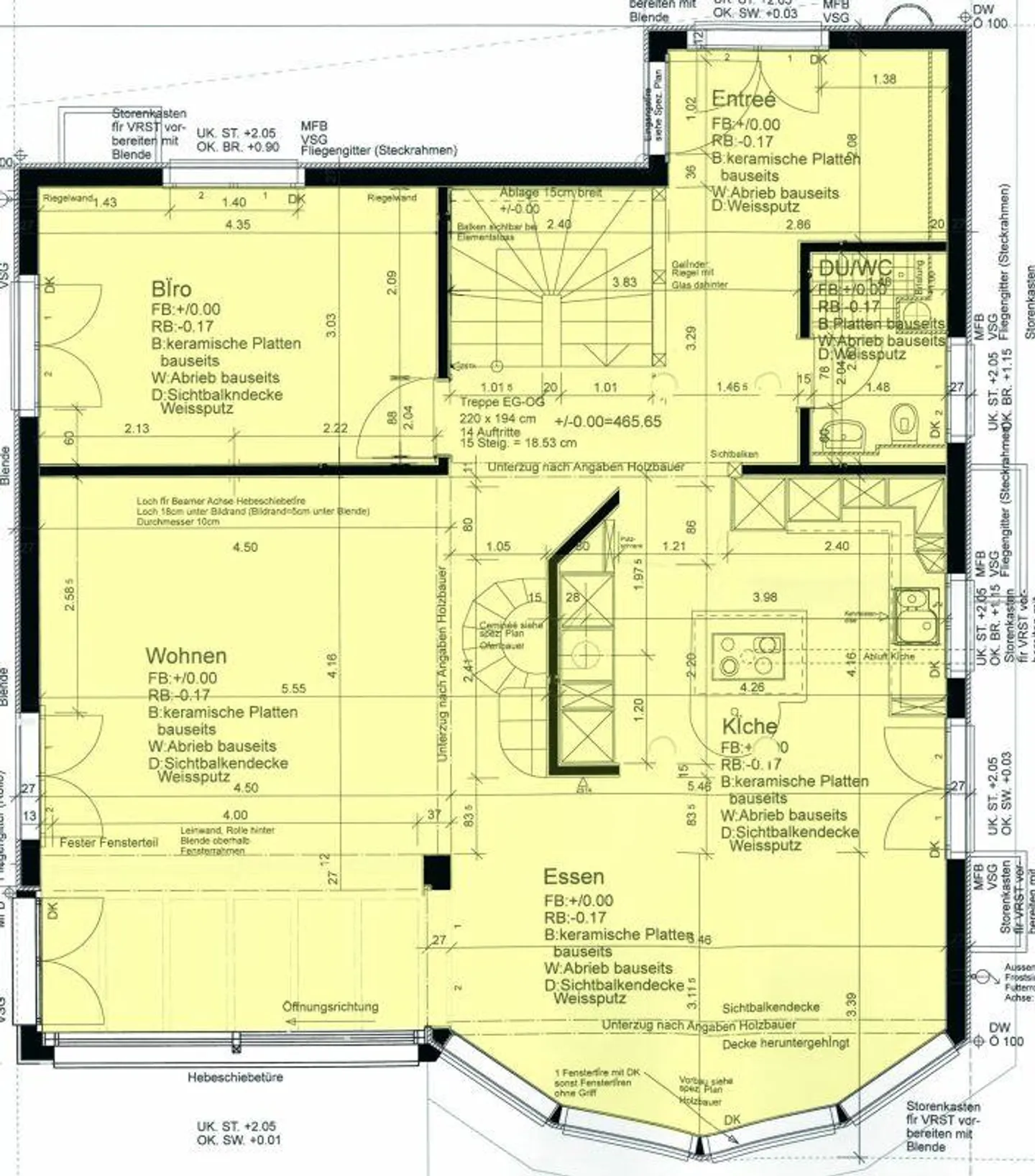
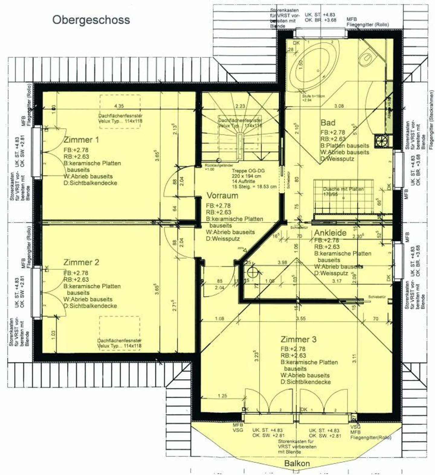
Vendiamo, per conto del proprietario, una casa unifamiliare di 5,5 stanze molto ben tenuta in Chrüzacher 6 a Stadel vicino a Niederglatt ZH. La proprietà si trova in un quartiere di case unifamiliari tranquillo e adatto alle famiglie con una strada senza uscita e dispone di un bellissimo giardino. L'area ricreativa e la fore...
Dettagli immobile
- Disponibile dal
- Su accordo
- Stanze
- 5.5
- Anno di costruzione
- 2004
- Superficie abitabile
- 305 m²
- Superficie terreno
- 670 m²
- Volume dell'edificio
- 1002 m³



