Casa a schiera in vendita - 5619 Büttikon AG
Perché amerai questa proprietà
Giardino soleggiato per relax
Ampia terrazza per incontri
Camere luminose con vista verde
Organizza una visita
Prenota una visita con Romy oggi!
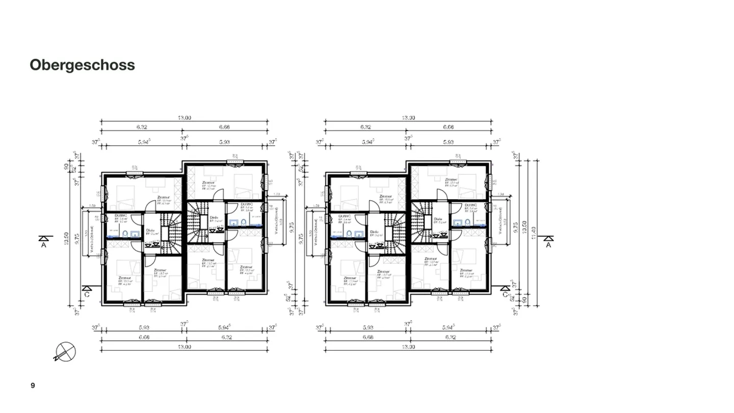
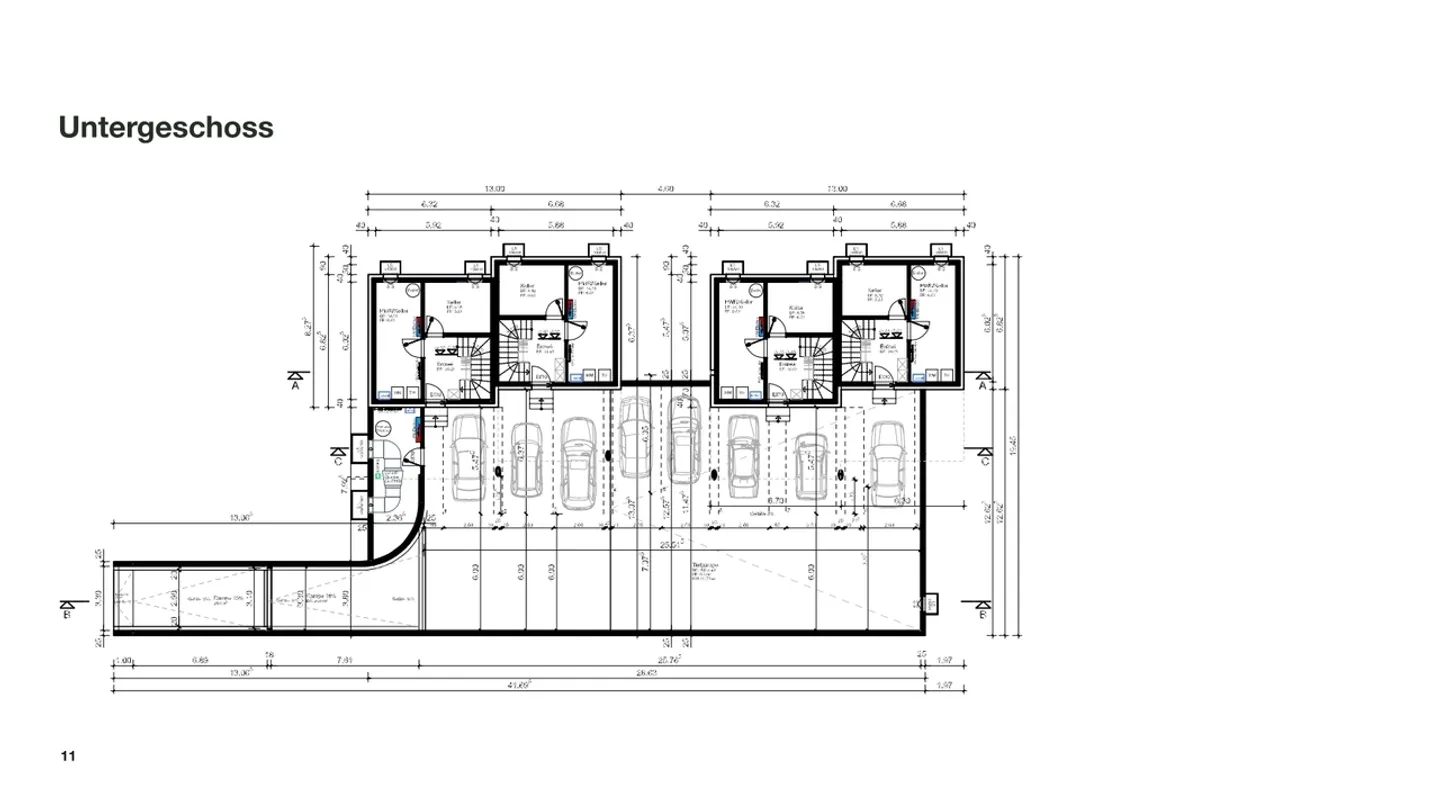
Nuova costruzione 2026 - Casa a schiera moderna di 5,5 stanze in posizione adatta alle famiglie, Büttikon
Benvenuti nella vostra nuova casa a Büttikon, AG - un luogo che unisce tranquillità, privacy e un'atmosfera abitativa ispiratrice. Questa casa a schiera di 5,5 stanze colpisce per la sua architettura di gusto e una generosa distribuzione degli spazi che offre possibilità di ritiro per ogni membro della famiglia e al contempo zone di incontro aperte. Grandi finestre inondano le stanze di luce e offrono una vista armoniosa sul verde, mentre godete del comfort di un piacevole quartiere residenziale...
Dettagli immobile
- Disponibile dal
- Su accordo
- Stanze
- 5.5
- Anno di costruzione
- 2026
- Superficie abitabile
- 148 m²
- Superficie terreno
- 239 m²



