Casa a schiera in vendita - Route de la Motta 5, 1791 Courtaman
Perché amerai questa proprietà
Spazio abitativo luminoso
Balconi e terrazze privati
Layout delle stanze flessibili
Organizza una visita
Prenota una visita con Gérance oggi!
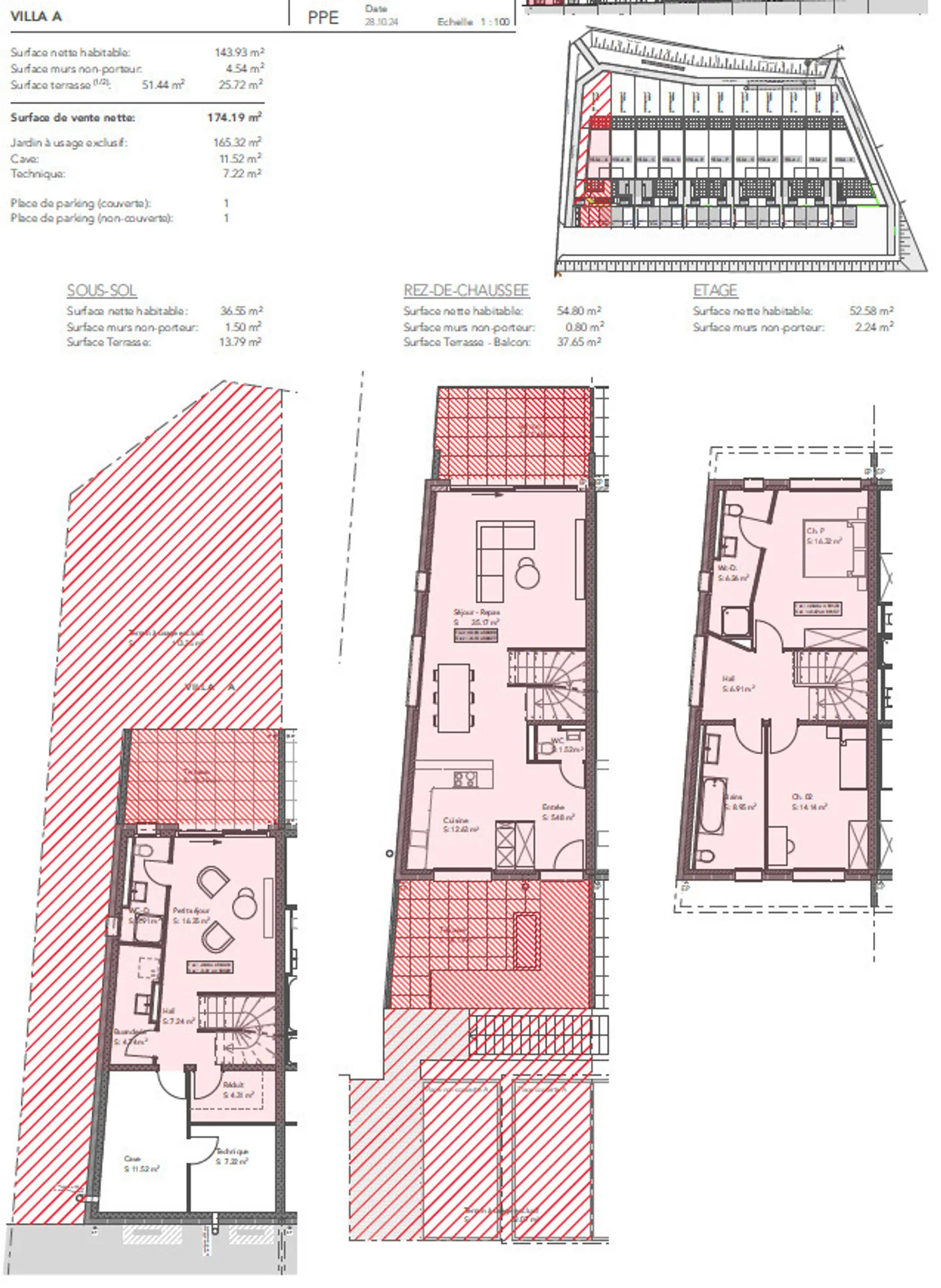
In vendita, villa spaziosa e luminosa su tre piani, idealmente situata a Courtaman.
Essa è composta come segue:
* 1 ingresso
* 1 cucina aperta sul soggiorno (52.23 m2)
* 1 WC ospiti con lavabo
* 2 grandi camere al piano superiore (12.12 m2 / 12.24 m2)
* 1 grande camera matrimoniale (17.87 m2) con bagno privato (WC / lavabo / doccia)
* 1 bagno (WC / lavabo / vasca)
* 1 piccolo soggiorno (17.45 m2) al piano inferiore con bagno privato (WC / lavabo / doccia)
* 1 lavanderia con lavabo
* 1 cantina
* 1 ripostig...
Dettagli immobile
- Disponibile dal
- Su accordo
- Stanze
- 5.5
- Bagni
- 4
- Anno di costruzione
- 2024
- Superficie abitabile
- 157.4 m²
- Superficie utilizzabile
- 201.1 m²
- Superficie terreno
- 85.3 m²
- Superficie terrazza
- 55.3 m²




