Casa a schiera in vendita - Place Du Collège 5, 1415 Molondin
Perché amerai questa proprietà
Interni ristrutturati
Giardino e piscina privati
Fascino storico e modernità
Organizza una visita
Prenota una visita con Catherine oggi!
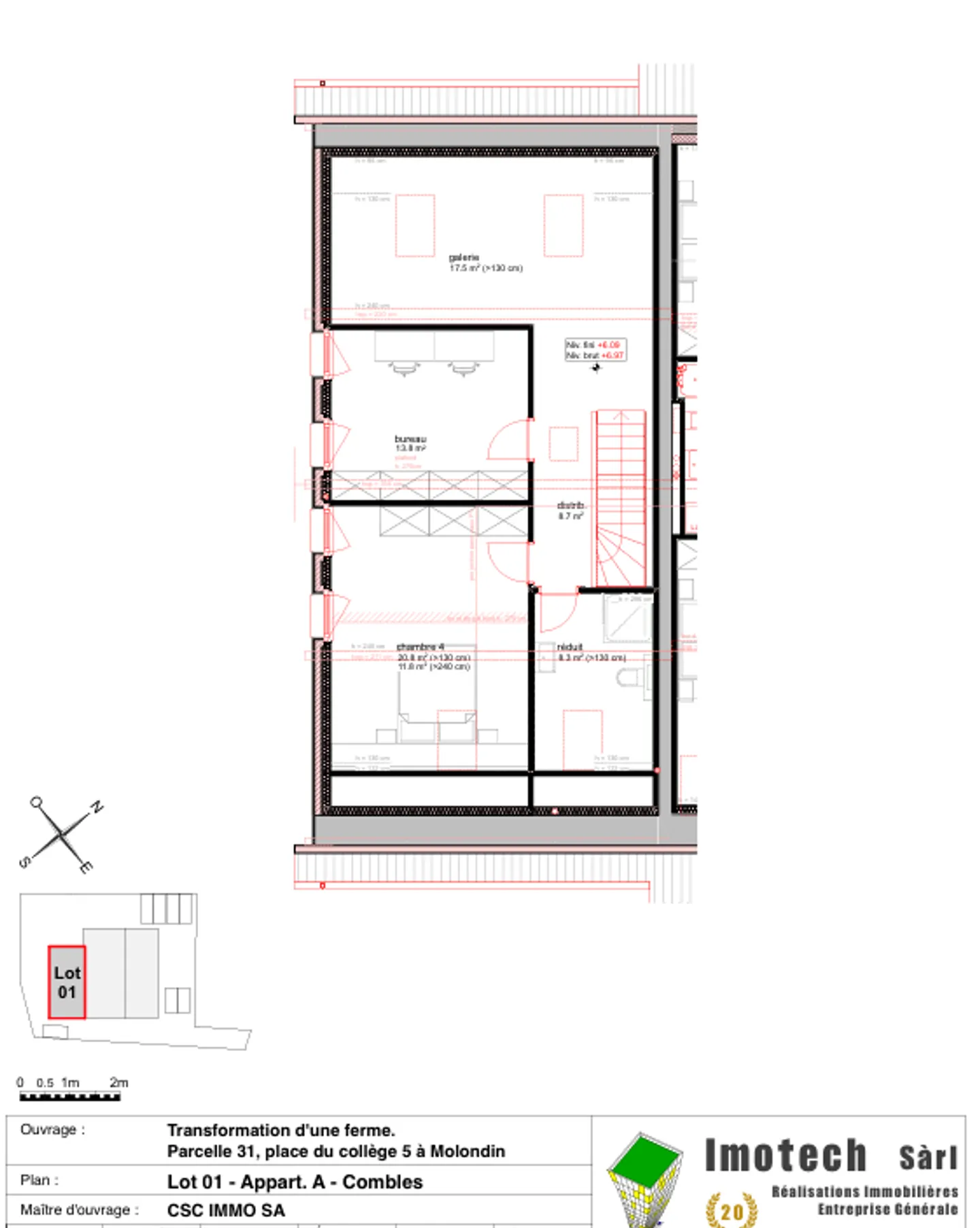
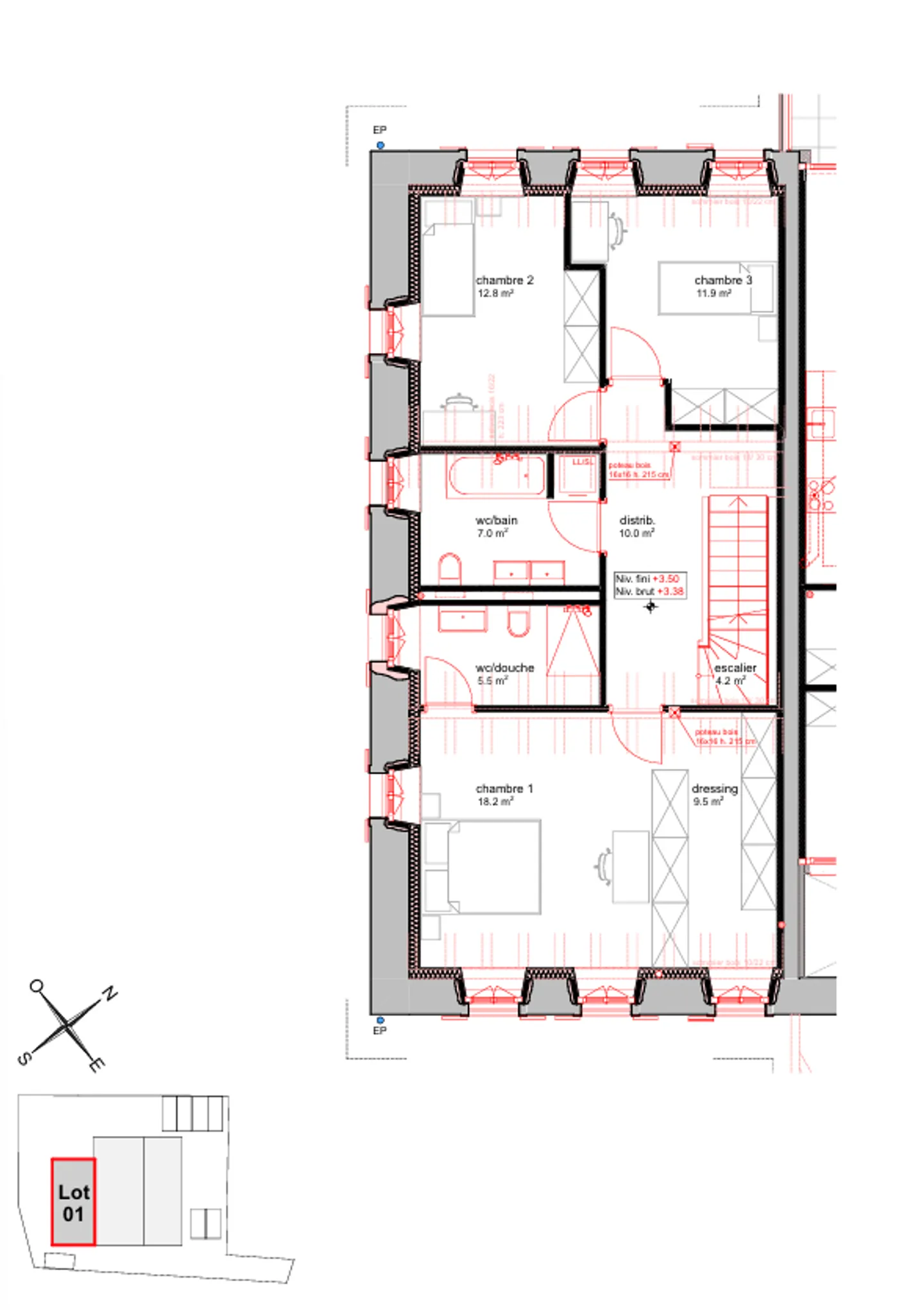
Casa a schiera 6.5 stanze
Nuovo appartamento di 6.5 stanze su 224 m2 con giardino
CANTIERE in CORSO - con scelta delle finiture.
Disponibile secondo accordo.
Casa principale di un antico podere dell'inizio del 19° secolo. Completamente ristrutturata con materiali di qualità. Giardino e piscina esterna privati.
Questo magnifico edificio di 6.5 stanze si estende su 224 m2 distribuiti su 3 livelli. Il giardino, arricchito da una terrazza e la piscina privata offrono un ambiente di vita eccezionale per rilassarsi con la famiglia...
Dettagli immobile
- Disponibile dal
- Su accordo
- Stanze
- 6.5
- Bagni
- 4
- Superficie abitabile
- 224 m²



