Casa singola in vendita - Flurweg 5, 8260 Stein am Rhein
Perché amerai questa proprietà
Giardino spazioso in stile parco
Ristrutturato con charme
Garage separato per veicoli
Organizza una visita
Prenota una visita con Jacqueline oggi!
Casa unifamiliare con giardino variegato
Stai cercando qualcosa di speciale? Per una casa unifamiliare con un giardino ben soleggiato e simile a un parco? Allora dovresti dare un'occhiata a questa proprietà. È stata amorevolmente ristrutturata nel 1990 e ampliata dal sottotetto e consiste in due appartamenti, che potrebbero facilmente essere uniti, aprendo così molte possibilità come ad esempio vivere e lavorare sotto lo stesso tetto, casa per più generazioni, ecc.
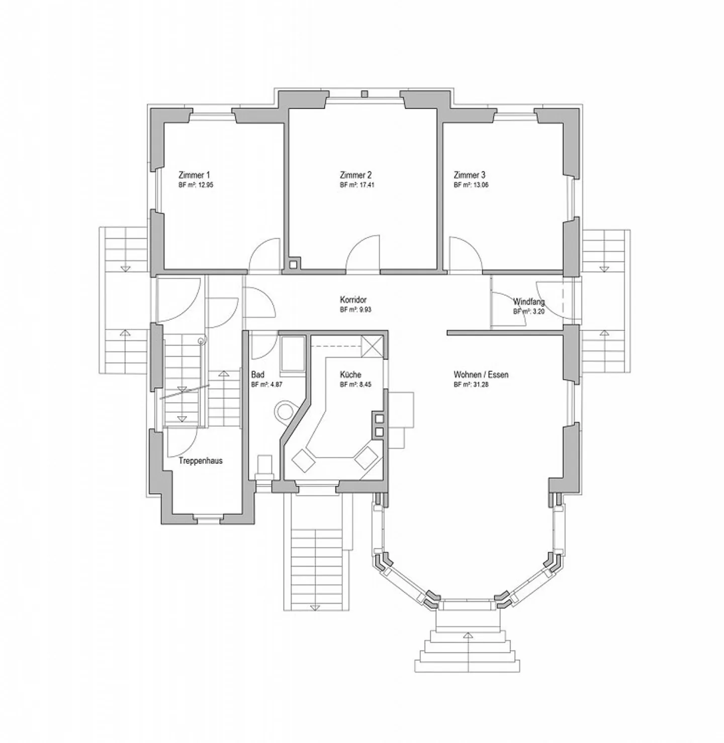
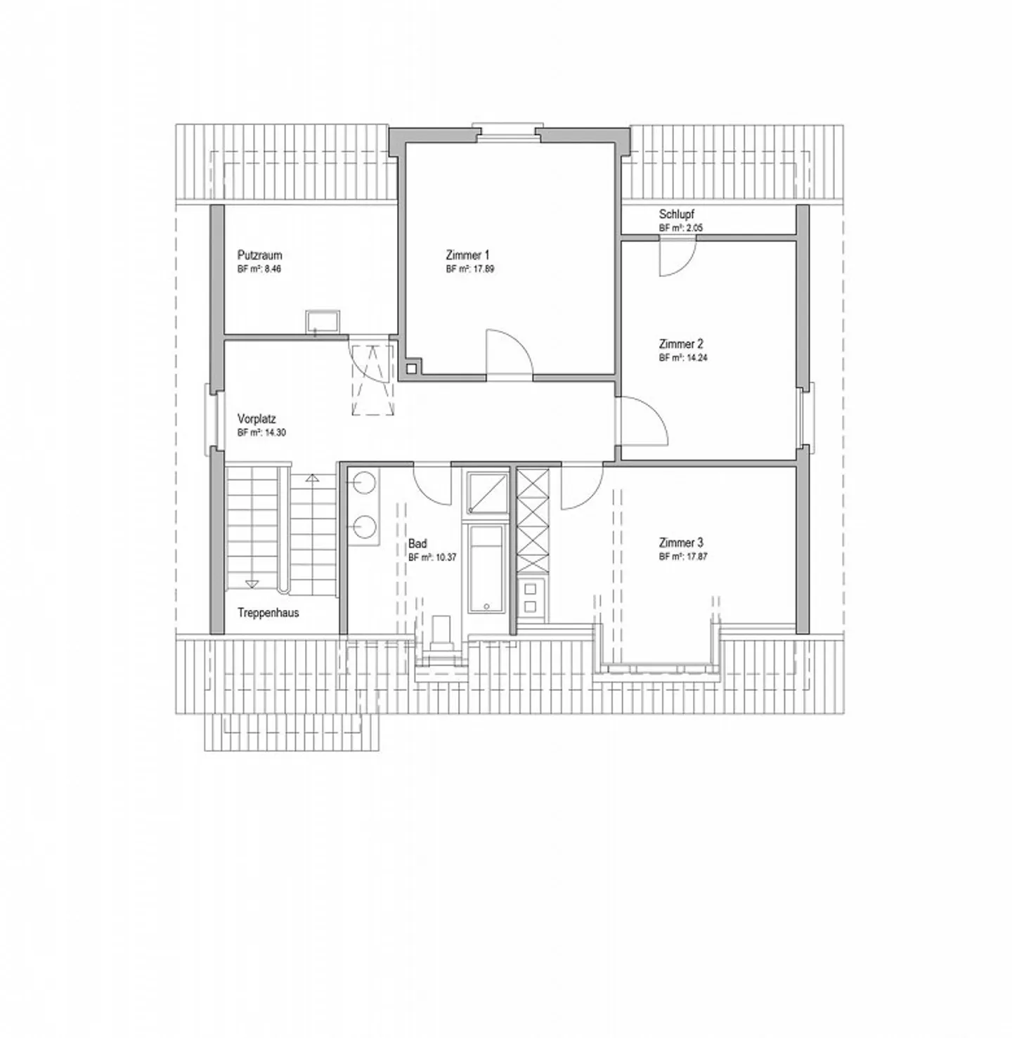
La suddivisione della casa è la seguente:
Piano terra: appartamento di 4 ...
Dettagli immobile
- Disponibile dal
- Su accordo
- Stanze
- 10.5
- Anno di costruzione
- 1900
- Anno di ristrutturazione
- 1990
- Superficie abitabile
- 292 m²
- Superficie terreno
- 1069 m²
- Volume dell'edificio
- 1610 m³



