Benvenuti in questa affascinante casa unifamiliare a Rüthi, che si distingue per la sua combinazione unica di fascino storico e comfort moderno. Questa proprietà ben tenuta, costruita originariamente nel 1721, offre una superficie abitabile di 194 m² ed è ideale per famiglie che apprezzano il comfort di una casa ben strutturata.
La casa storica è stata modernizzata per l'ultima volta nel 2001 e si presenta in ottime condizioni. Situata su un ampio terreno di 864 m², offre non solo qualità abitativa, ma anche ampio spazio per attività all'aperto.
Con 4,5 stanze e due bagni moderni, oltre a un WC per gli ospiti, questa casa unifamiliare garantisce che non manchi spazio e comodità. La disposizione delle stanze è pensata per trasmettere un senso di apertura e luminosità, mentre i dettagli curati dell'architettura di epoche passate preservano un carattere unico.
Inoltre, sulla proprietà si trova una grange, ristrutturata nel 2015. La grange contiene un vecchio stalla per mucche, un laboratorio, un deposito di legna, un capannone per auto (garage) e una sala espositiva nella soffitta. Il tetto, la facciata e le pareti esterne sono stati tutti rinnovati, con un nuovo pavimento installato nel laboratorio e nella soffitta. Tutti i lavori di ristrutturazione della casa unifamiliare e della grange sono stati eseguiti in consultazione con l'autorità di protezione del patrimonio.
Nota importante: La casa si trova nella zona di protezione del paesaggio locale A ed è un oggetto culturale.
Questa affascinante casa unifamiliare si trova nel comune di Rüthi nel cantone di San Gallo, in Svizzera. Incastonata in un ambiente che offre sia tranquillità che una vista impressionante sul paesaggio montano circostante, la posizione della casa unisce il fascino rurale alla vicinanza urbana.
Rüthi offre ai suoi residenti un'alta qualità della vita. Nelle immediate vicinanze ci sono diverse opzioni di shopping per le necessità quotidiane, facilmente raggiungibili a piedi.
I collegamenti di trasporto sono buoni e consentono un facile accesso alle città e alle regioni circostanti. I mezzi pubblici sono raggiungibili a pochi passi, rendendo la vita quotidiana più facile per i pendolari. Per le attività ricreative, ci sono numerosi sentieri per escursioni e ciclismo nella zona che attraggono sia gli amanti della natura che gli appassionati di sport.
Le famiglie con bambini beneficiano di un'ampia offerta educativa, che va dai nidi d'infanzia alle scuole primarie e secondarie.
Questa casa unifamiliare a Rüthi offre un'opportunità unica di vivere il perfetto equilibrio tra connessione con la natura e tutti i vantaggi di un'infrastruttura ben sviluppata.
Distribuzione degli spazi:
Piano terra:
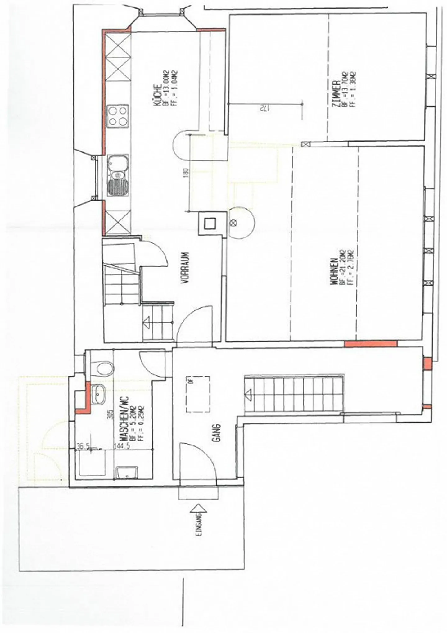
-Salone (21m2)
-Sala da pranzo (13m2)
-Cucina (13m2)
-WC-lavanderia (5m2)
-Spazio giardino (45m2)
Piano superiore:
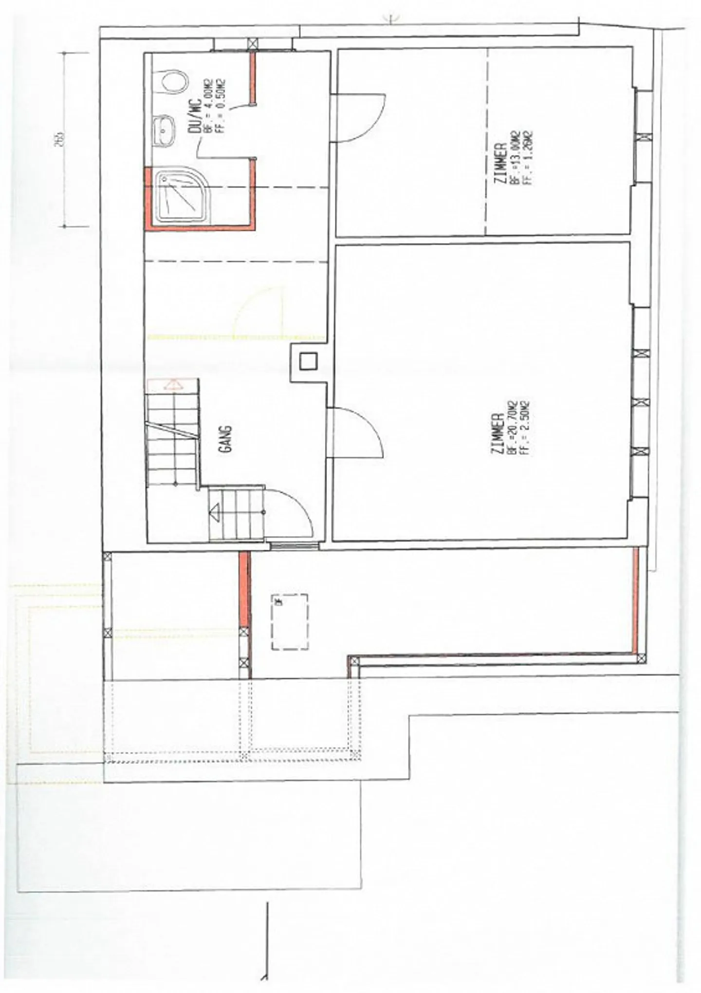
-Stanza (20m2)
-Stanza (13m2)
-Doccia/WC (4m2)
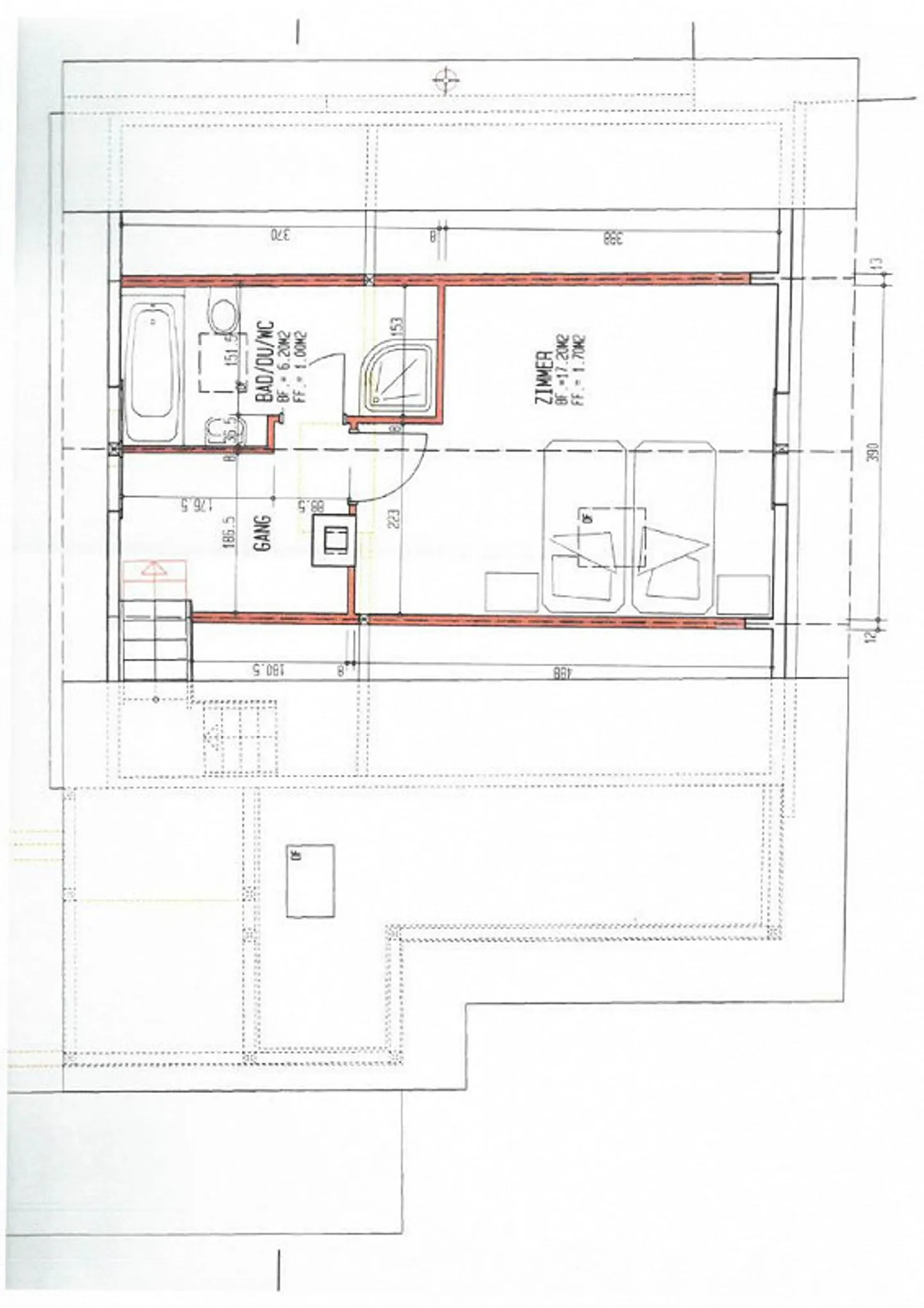
Soffitta:
-Stanza (17m2)
-Bagno (6m2)
Caratteristiche:
-Altezza stanze piano terra/piano superiore: 2,15 m
-Impianto fotovoltaico disponibile (2018)
-Vasca idromassaggio angolare con doccia nel soffitto
-Stufa a legna nel soggiorno
-Vetratura dello spazio esterno (funzionamento elettrico)
-Grande grange con laboratorio, sala espositiva, garage e deposito di legna
Energy consumption
No dataGreenhouse gas emmissions
No dataStaatsstrasse 45
9464 Rüthi (Rheintal) (SG)