Casa singola in vendita - 4202 Duggingen
Perché amerai questa proprietà
Progetto edilizio approvato
Posizione soleggiata con sole serale
Opzioni abitative flessibili disponibili
Organizza una visita
Prenota una visita oggi!
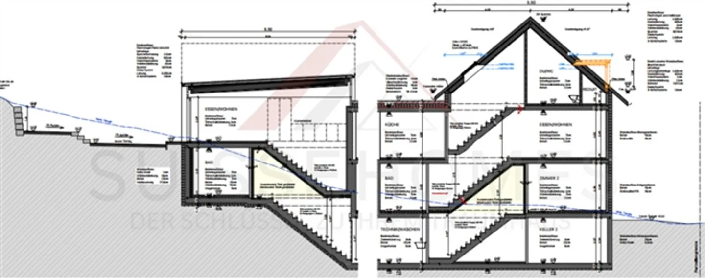
Progetto di casa con due unità abitative a duggingen - approvato, situato in posizione centrale e pronto per l'inizio dei lavori
Progetto di casa con due unità abitative a Duggingen - approvato, situato in posizione centrale e pronto per l'inizio dei lavori
Un'offerta rara nel centro del villaggio di Duggingen.
Questo progetto di costruzione approvato per una moderna casa bifamiliare offre su un terreno di 350 m² la base ideale per combinare in modo ottimale abitare, lavorare o affittare. La posizione tranquilla e soleggiata con sole serale fino alle 20:00 circa e la connessione di prima classe a Basilea (solo 15 minuti con...
Dettagli immobile
- Disponibile dal
- Su accordo
- Stanze
- 6
- Superficie terreno
- 350 m²



