Villa in vendita - Schöneggstrasse 4, 8212 Neuhausen am Rheinfall
Perché amerai questa proprietà
Fascino rustico e lusso
Vista mozzafiato sul giardino
Opzioni di proprietà versatili
Organizza una visita
Prenota una visita oggi!
Una Villa Signorile con Architettura Elegante
Benvenuti in questa impressionante villa signorile.
Si distingue per la sua architettura elegante e la generosa distribuzione degli spazi. Scoprite la perfetta simbiosi tra charme rustico e architettura opulenta nel cuore di Neuhausen am Rheinfall.
La villa colpisce per la sua atmosfera accogliente e nei giorni di bel tempo potrete godere della vista incantevole sul meraviglioso giardino fino alle cime montuose innevate.
La proprietà è versatile. Questo vale sia per la casa che per il terreno. P...
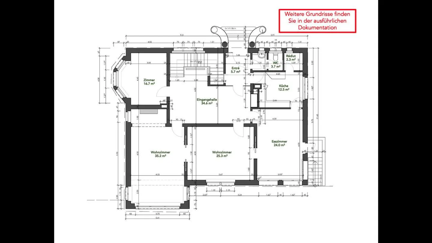
Dettagli immobile
- Disponibile dal
- Su accordo
- Stanze
- 11
- Anno di costruzione
- 1920
- Superficie abitabile
- 345 m²
- Superficie terreno
- 7833 m²



