Casa singola in vendita - Rue Du Nord 4, 1907 Saxon
Perché amerai questa proprietà
Costruzione moderna MINERGIE
Grandi finestre LUMICENE
Balcone con vista mozzafiato
Organizza una visita
Prenota una visita con Léanie oggi!
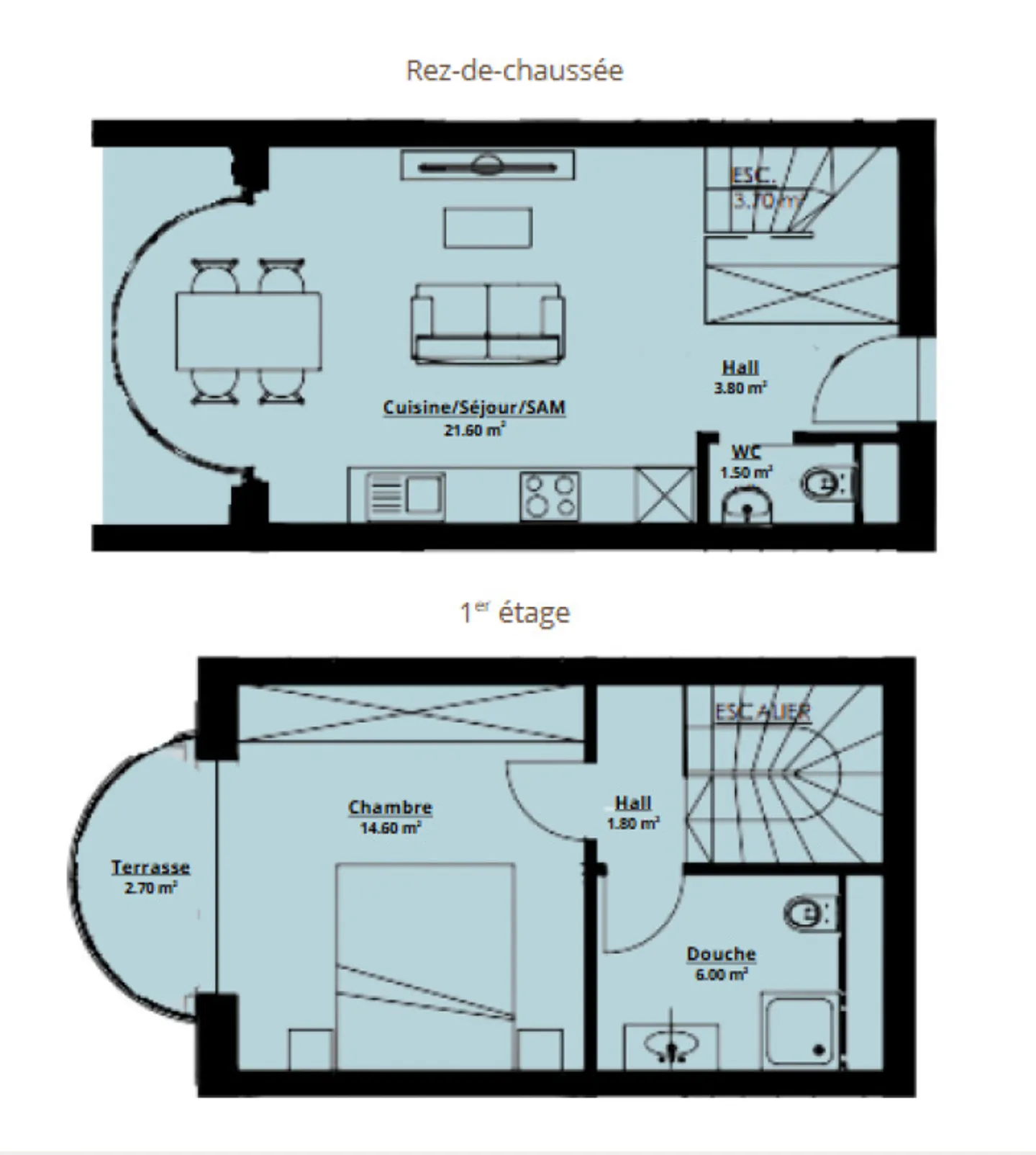
Appartamento duplex di 2,5 locali a Saxon è un comune piacevole situato tra Sion e Martigny. L'immobile in vendita si trova in un ambiente tranquillo vicino alla stazione ferroviaria di Saxon. L'appartamento duplex si estende su due livelli (piano terra - primo piano). Al piano terra, un ingresso e un bagno per gli ospiti, poi si apre su uno spazio aperto che raggruppa la cucina, il soggiorno e la sala da pranzo, tutto con accesso alla terrazza con finestra panoramica LUMICENE per sfruttare al m...
Dettagli immobile
- Disponibile dal
 - Su accordo
 - Stanze
 - 2.5
 - Superficie abitabile
 - 74 m²
 



