Casa singola in vendita - 3979 Grône
Perché amerai questa proprietà
Ampia terrazza e giardino
Cucina aperta con dispensa
Finiture personalizzabili incluse
Organizza una visita
Prenota una visita oggi!
3 nuove ville contemporanee a grône
Le superfici
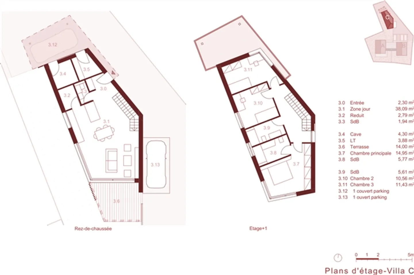
Villa C
- superficie grezza piano terra 67.89 m2
- superficie grezza piano 73.85 m2
- superficie terrazza 13.97 m2
- superficie giardino 74.69 m2
Descrizione Villa 4.5 a Grône
Posizione
A soli 7 minuti dalla capitale del Vallese, uscita autostradale EST, Sion sta ampliando il suo Ospedale, creando un EPFL, Energypolis.
La sua nuova sala concerti e congressi, stazione CFF Sion-Lausanne e Sion-Milano, e il suo aeroporto nel cuore della Valle.
Le piste da sci e numerose passeggiate s...
Dettagli immobile
- Disponibile dal
- 01.07.2026
- Stanze
- 4.5
- Anno di costruzione
- 2025
- Superficie abitabile
- 142 m²
- Superficie utilizzabile
- 142 m²



