Da costruire, casa familiare di 5,5 stanze in un ambiente tranquillo
Perché amerai questa proprietà
Alta efficienza energetica
Giardino esposto a sud
Design moderno e ecologico
Organizza una visita
Prenota una visita con Dominique oggi!
ESCLUSIVITÀ
**
LES ECRINS DE NOËS - Villa B
In vendita su progetti, casa familiare ecologica su un terreno idealmente situato a ovest del villaggio di Noës.**
La costruzione sarà realizzata secondo gli standard del certificato "CECB A/A Neubau".
Questa efficienza energetica è ottenuta attraverso un'isolamento periferico di alta qualità, vetri tripli, una moderna pompa di calore aria-acqua, un sistema di ventilazione a doppio flusso con scambiatore di calore e un impianto solare con una capacità d...
Dettagli immobile
- Disponibile dal
- Su accordo
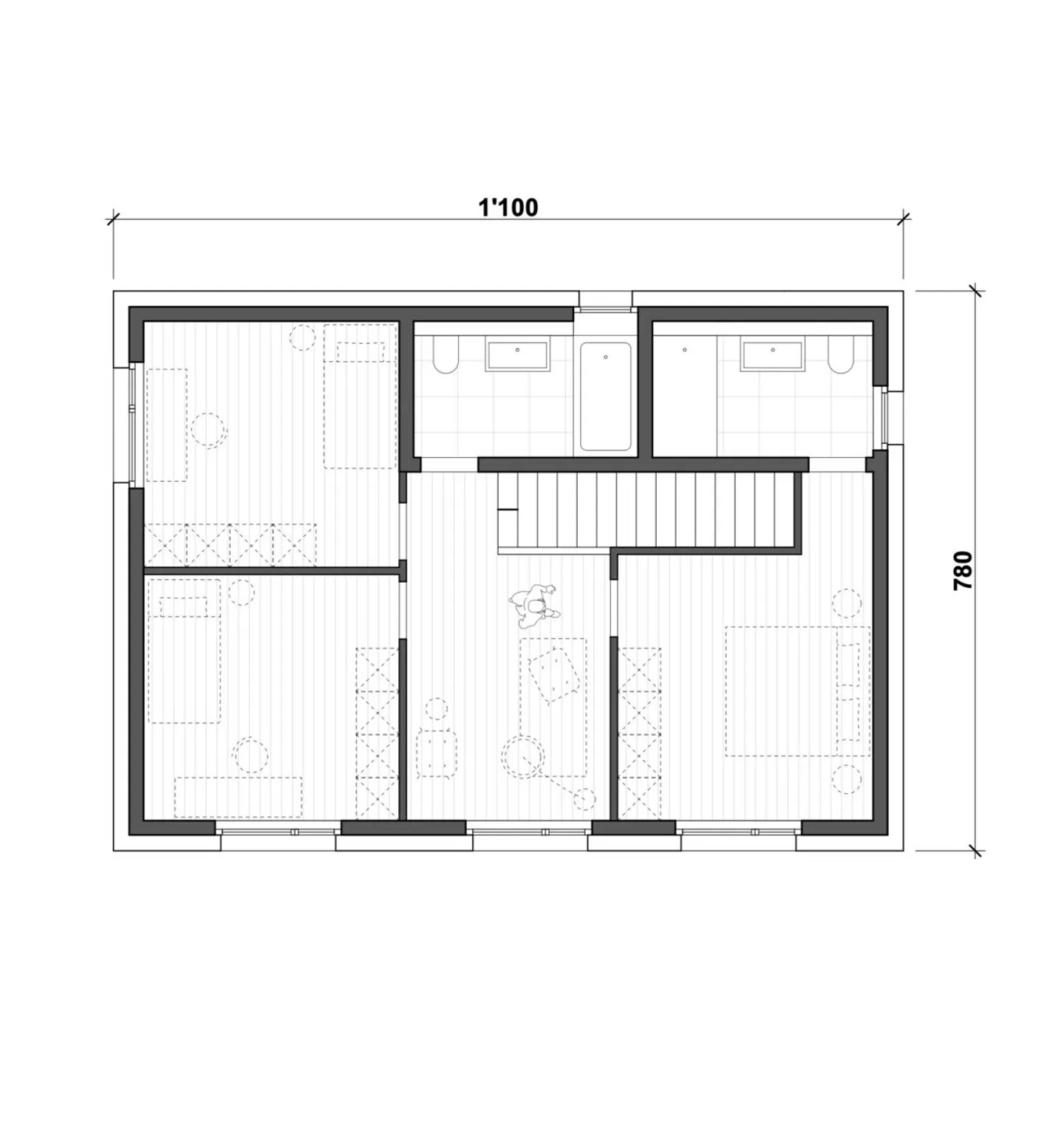
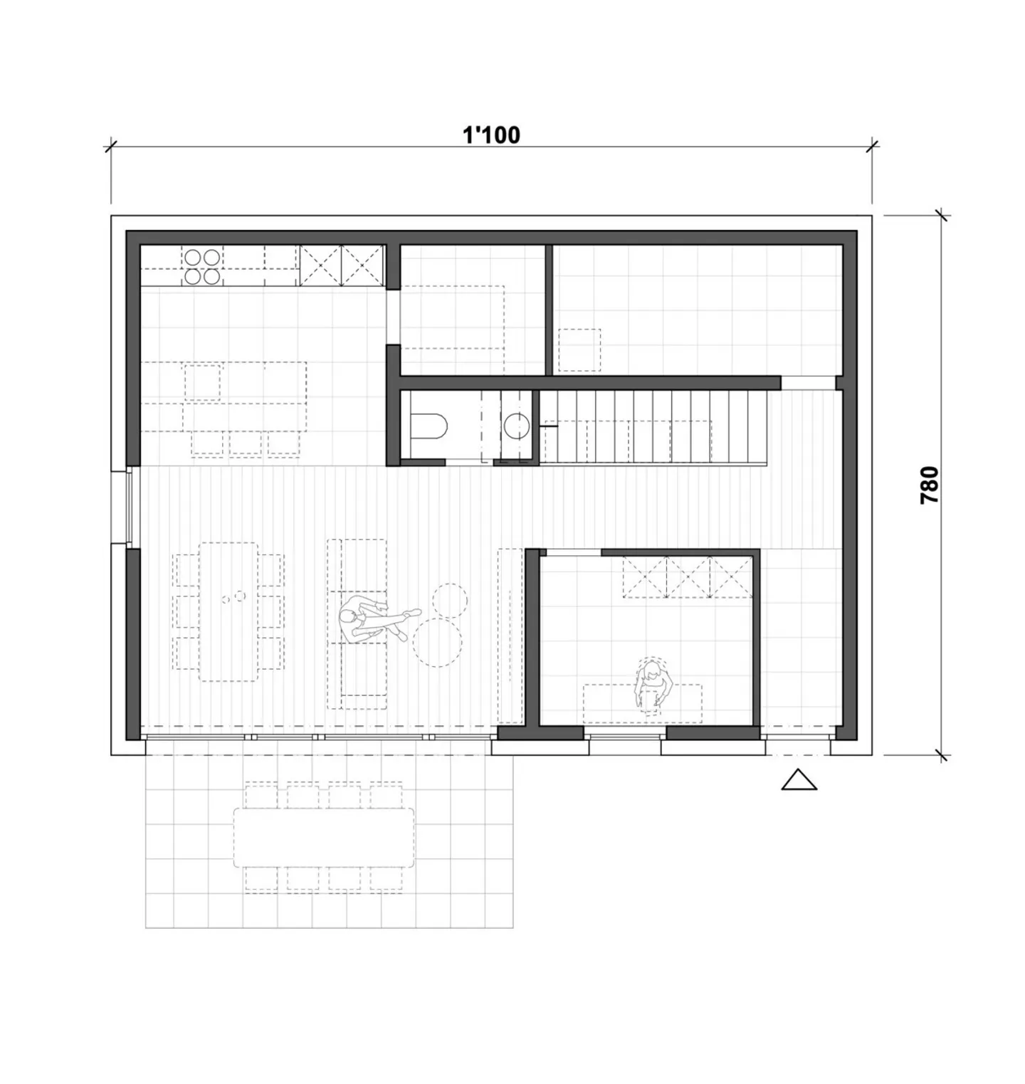
- Stanze
- 5.5
- Anno di costruzione
- 2026
- Superficie abitabile
- 170 m²
- Superficie terreno
- 484 m²




