Casa singola in vendita - 2912 Roche-d'Or
Perché amerai questa proprietà
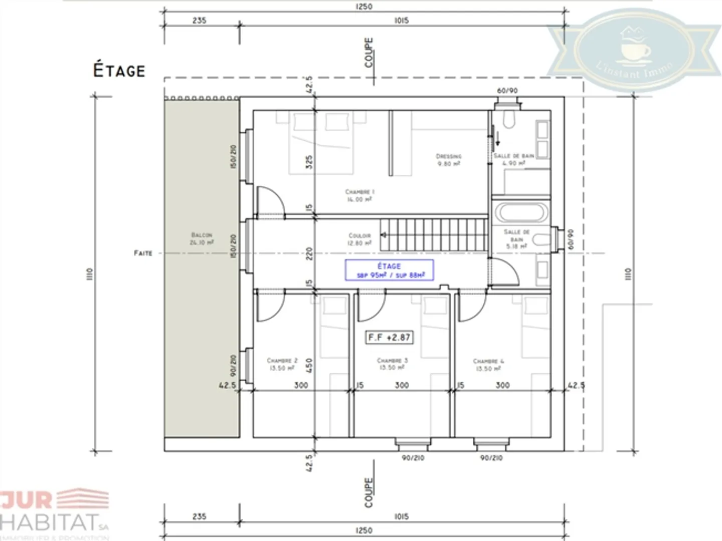
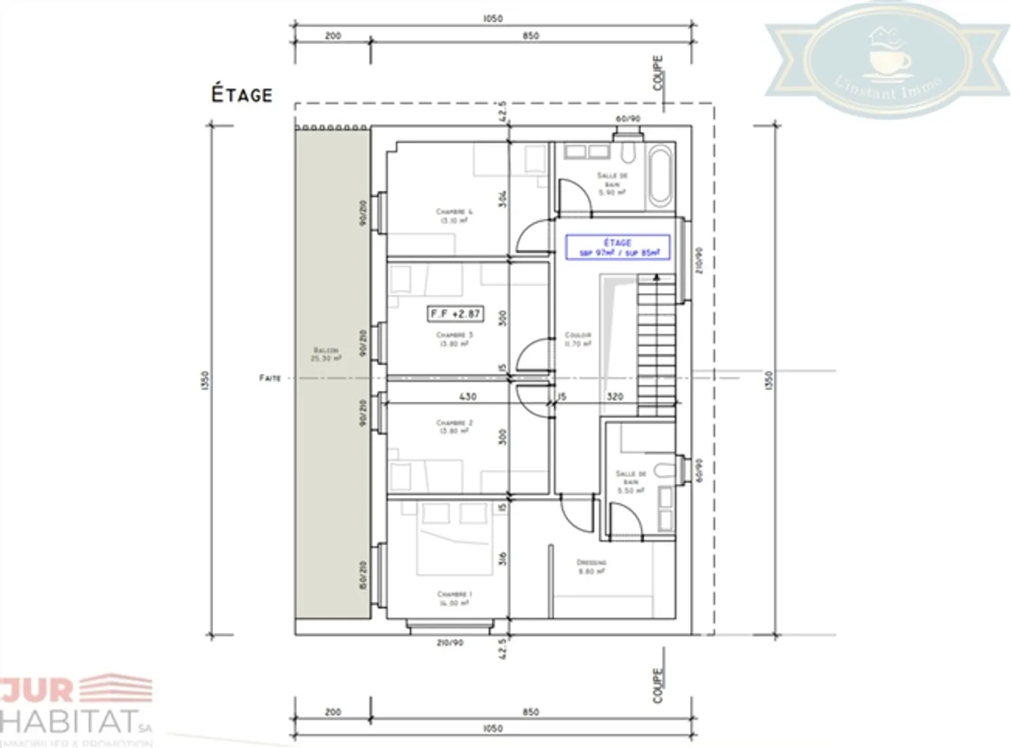
Suite padronale con cabina armadio
Ampio soggiorno e sala da pranzo
Terrazza e balcone per relax
Organizza una visita
Prenota una visita oggi!
Offerta eccellente per 3 ville indipendenti a réclère.
Questa offerta eccellente di 3 ville indipendenti con 5,5 stanze, che saranno costruite a Réclère, si trova nel centro del villaggio, vicino alla natura e a pochi minuti di auto dai servizi.
Ognuna delle case, su due piani, è composta da 3 camere da letto con una suite padronale con cabina armadio e un bagno con doccia italiana e WC. Troviamo anche un ampio soggiorno aperto sulla sala da pranzo, così come la cucina con dispensa. Un bagno con WC e vasca da bagno e un WC per gli ospiti completano ...
Dettagli immobile
- Disponibile dal
- Su accordo
- Stanze
- 5.5
- Anno di costruzione
- 2023
- Superficie terreno
- 670 m²



