1 / 11

Villa in affitto - Route De Domdidier 27, 1566 St-Aubin FR

4.5 rooms • 140 m²
Prezzo su richiesta
-

Perché amerai questa proprietà

Ampio soggiorno di 64 m²

Riscaldamento geotermico moderno

Grande terrazza di 32 m²

Organizza una visita

Prenota una visita oggi!

Questa descrizione è stata tradotta automaticamente da Francese.

Villa 4.5 stanze

*VENDUTO* Nuova villa indipendente di 4,5 stanze

*VENDUTO* Situata a Saint-Aubin (FR) vicino ai servizi, questo nuovo progetto è composto da 6 nuove case indipendenti. Ogni villa offre volumi generosi, finiture di qualità e attrezzature moderne (finiture a scelta degli acquirenti).

Caratteristiche chiave di questo progetto: riscaldamento a pavimento tramite pompa di calore geotermica, pannelli fotovoltaici, tende motorizzate, fibra ottica, termostato ambiente per stanza, ecc...

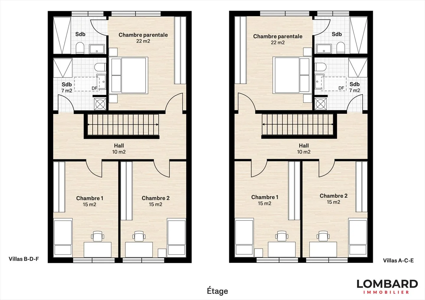
La villa B è compost...

Dettagli immobile

Disponibile dal
Su accordo
Stanze
4.5
Bagni
2
Superficie abitabile
140

Caratteristiche

Balcone
Parcheggio

Agenzia

Lombard Immobilier SA
Lombard Immobilier SA
(22 reviews)

Località

Route De Domdidier 27, 1566 St-Aubin FR

Fonti