Fattoria in vendita - 2615 Sonvilier
Perché amerai questa proprietà
Ristrutturazione premiata
Architettura unica del 17° secolo
Vita moderna incontra la storia
Organizza una visita
Prenota una visita con Patrice oggi!
Magnifico casale ristrutturato. Entrato nella storia dell'orologeria
Nel 1985, questo casale restaurato ha ricevuto il Premio del Patrimonio di Neuchâtel.
Il passato come presentazione
Quando l'architettura incontra il passato, o come costruire un ponte su tre secoli e mezzo secolo di storia.
Tra la "bella stanza" originale e il soggiorno moderno allestito nell'antica stalla, c'è solo una semplice porta di legno. E un salto di tre secoli. Ma nessuno shock: solo la vita che continua, nelle dolci colline di questo estremo nord del Val-de-Ruz.
È un casale giurassian...
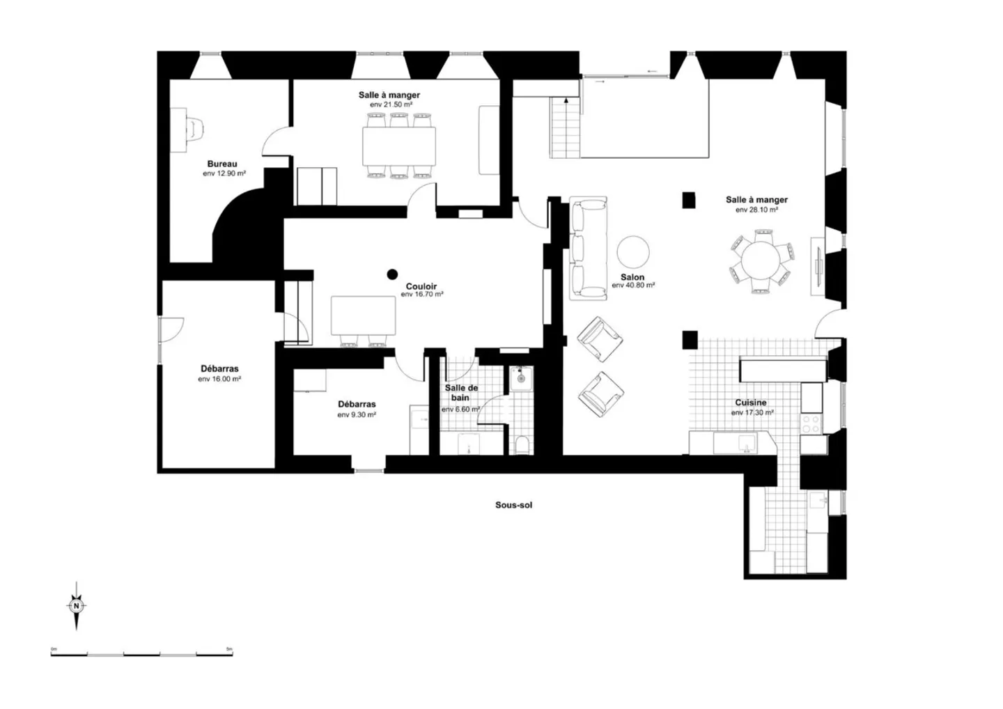
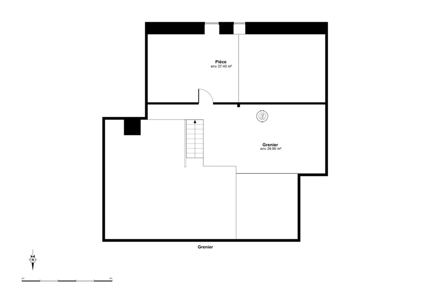
Dettagli immobile
- Disponibile dal
- Su accordo
- Stanze
- 8.5
- Anno di costruzione
- 1652
- Anno di ristrutturazione
- 1999
- Superficie abitabile
- 300 m²
- Superficie utilizzabile
- 100 m²
- Superficie terreno
- 1231 m²
- Volume dell'edificio
- 1299 m³



