Casa singola in vendita - Via Locarno 25, 6516 Cugnasco
Perché amerai questa proprietà
Posizione strategica soleggiata
Ampio giardino privato
Cucina moderna aperta
Organizza una visita
Prenota una visita con SAGL oggi!
IN VENDITA A CUGNASCO - NUOVA CASA UNIFAMILIARE DI 4,5 STANZE
IN VENDITA A CUGNASCO - NUOVA CASA UNIFAMILIARE DI 4,5 STANZE
In vendita a Cugnasco, in una posizione molto strategica e soleggiata, una casa unifamiliare di nuova costruzione.
Le ampie stanze e la disposizione ben pensata rendono questa casa ideale per una famiglia che cerca una propria residenza.
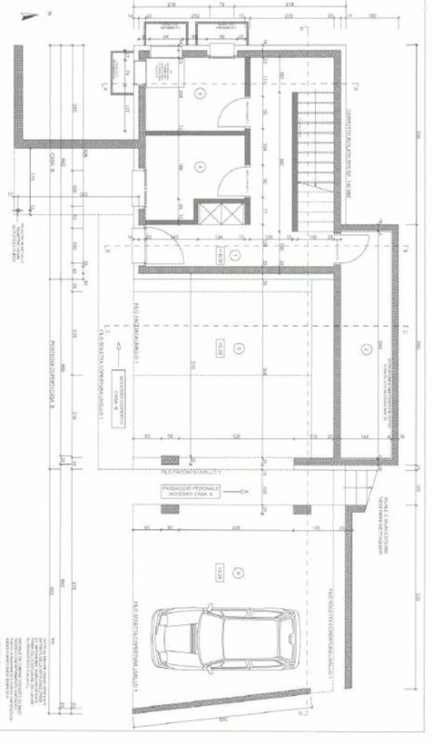
La casa si sviluppa su 3 piani ed è suddivisa come segue:
Piano terra (superficie lorda 29,97 m²):
- Ingresso/guardaroba;
- Locale cantina;
- Lavanderia privata;
- Locale tecnico.
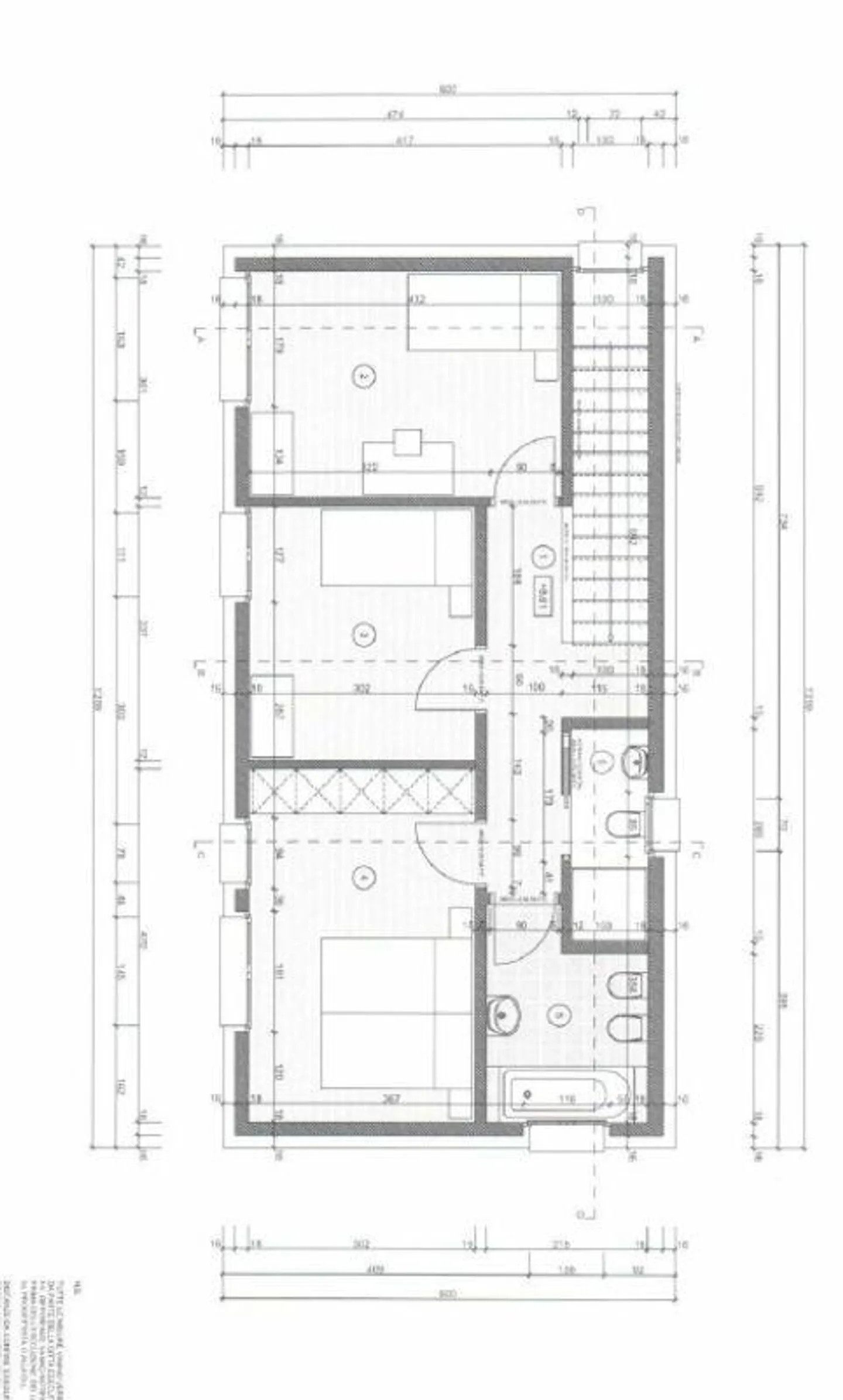
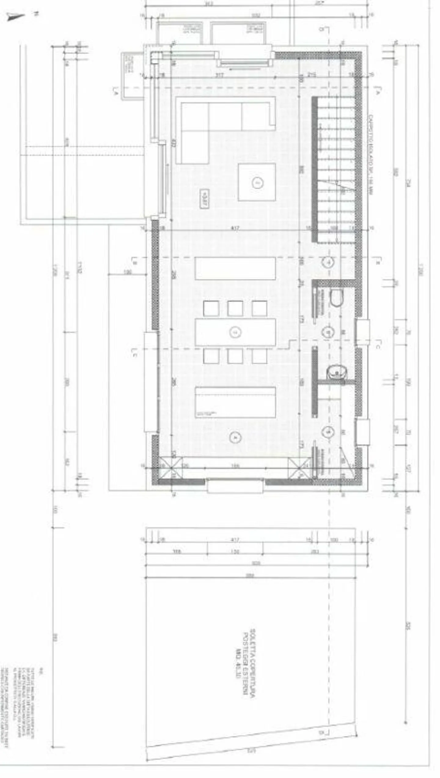
1° PIANO (superficie lorda 72...
Dettagli immobile
- Disponibile dal
- Su accordo
- Stanze
- 4.5
- Anno di costruzione
- 2024
- Superficie abitabile
- 138 m²
- Superficie terreno
- 208 m²



