Casa bifamiliare in vendita - Rue De La Perrausa 21, 1632 Riaz
Perché amerai questa proprietà
Soggiorno luminoso
Spazio giardino privato
Design energetico efficiente
Organizza una visita
Prenota una visita con Jérome oggi!
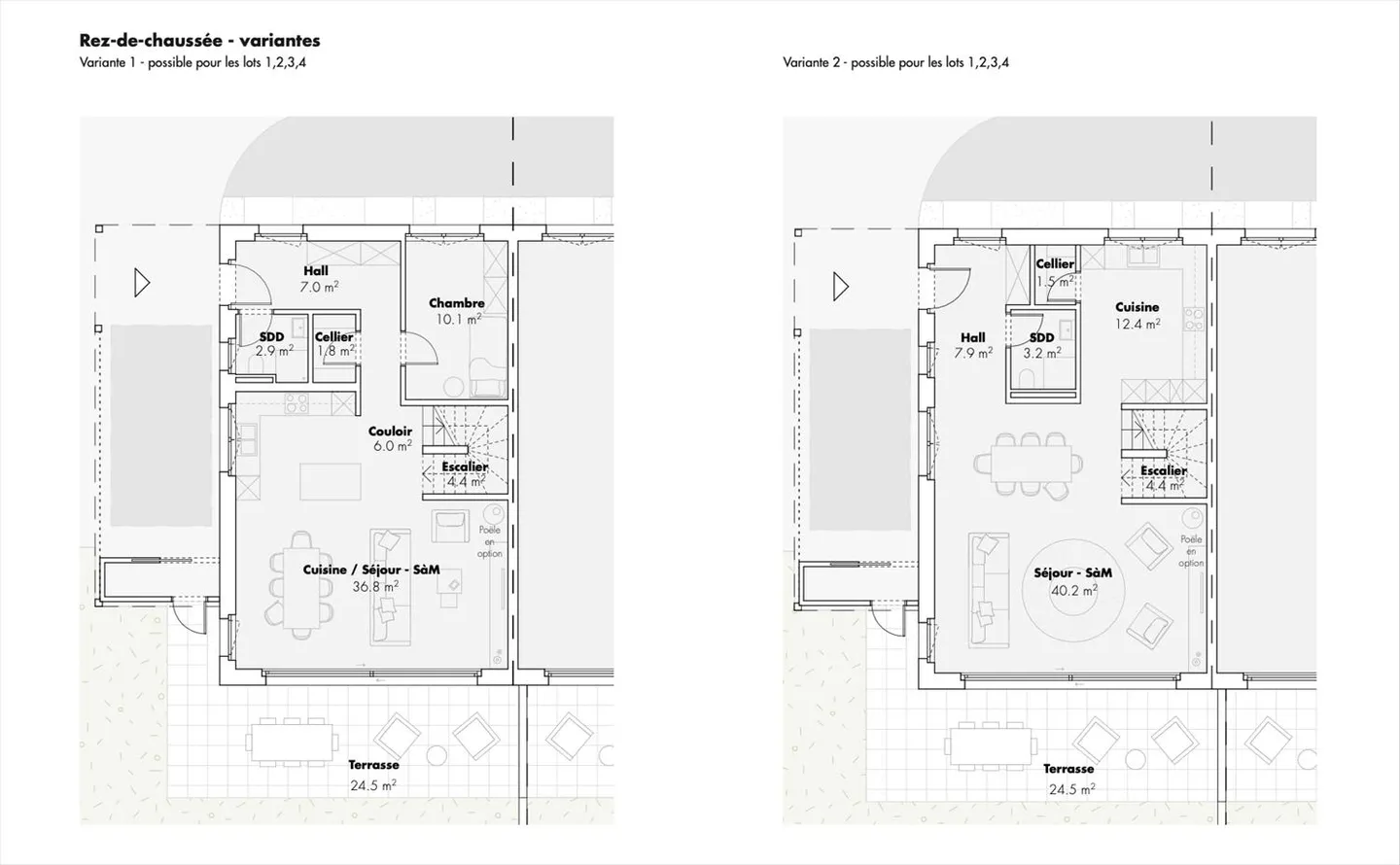
Casa a schiera 6.5 stanze
Ville a schiera 4.5 - 6.5 stanze - Riaz
In vendita - ville a schiera "Rive de l'Ondine" a Riaz
Nel cuore della Gruyère
Il progetto "Rive de l'Ondine" offre cinque ville eccezionali nel villaggio di Riaz, ai piedi delle Prealpi e a pochi minuti da Bulle. Troverete un ambiente di vita privilegiato, che unisce natura, tranquillità e vicinanza ai servizi.
Il progetto è composto da cinque ville, di cui quattro sono a schiera. Orientate a Sud-Ovest, ciascuna villa è progettata per offrire un ambiente di v...
Dettagli immobile
- Disponibile dal
- Su accordo
- Stanze
- 6.5
- Bagni
- 2
- Superficie abitabile
- 147 m²



