Casa singola in vendita - 1955 Chamoson
Perché amerai questa proprietà
Ristrutturato con fascino autentico
Garage spaziosa per stoccaggio
Spazi abitativi personalizzabili
Organizza una visita
Prenota una visita con Roland oggi!
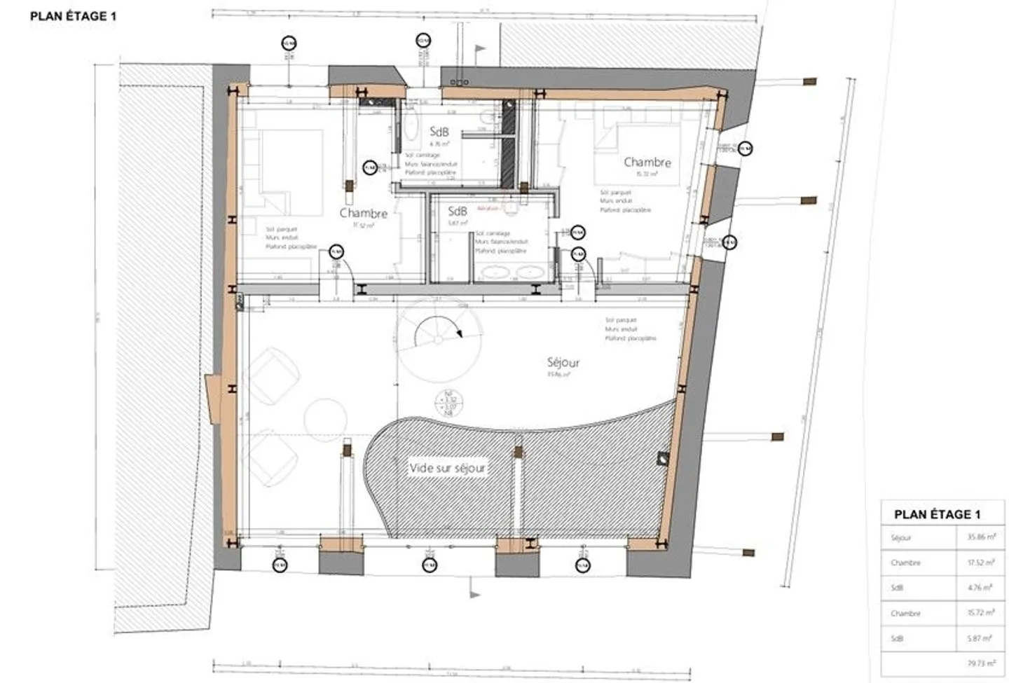
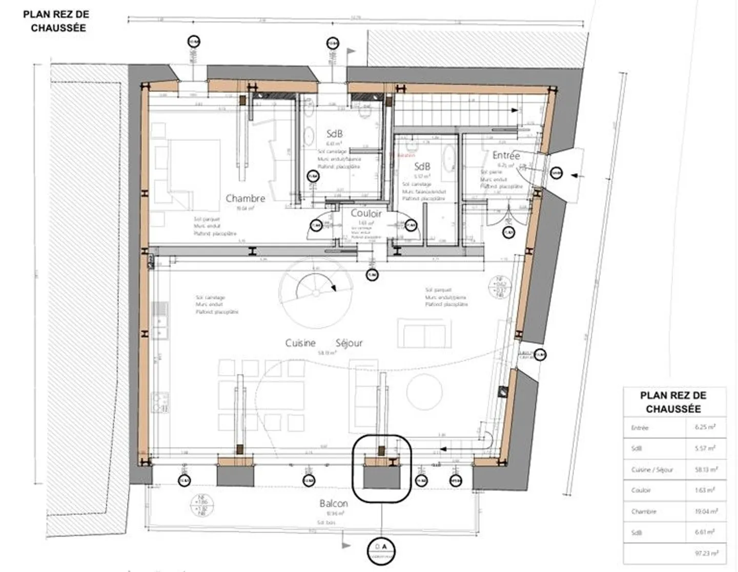
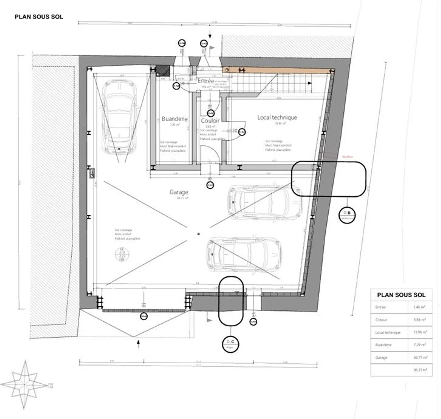
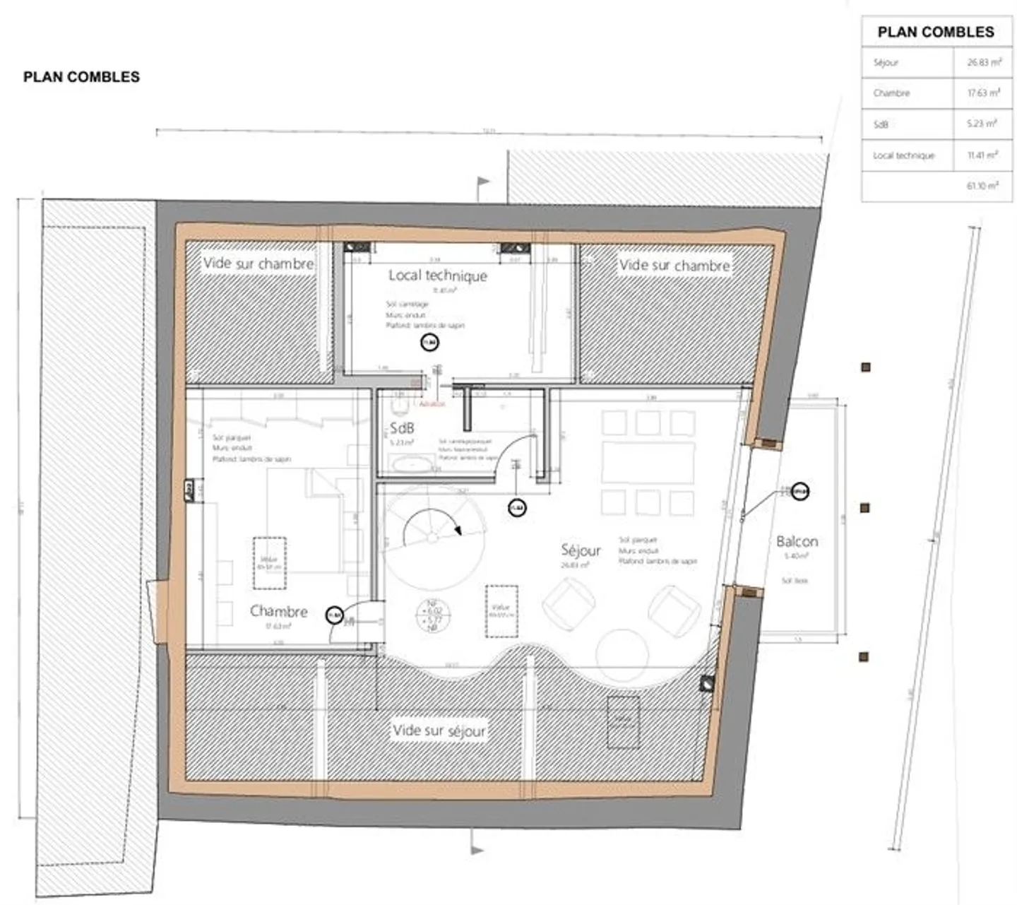
Casa nel villaggio con 7,5 stanze a Saint-Pierre-de-Clage, 237 m2
Si trova nel cuore del pittoresco villaggio di Saint-Pierre-de-Clages, noto per il suo patrimonio e il suo ambiente tranquillo, e offre un potenziale eccezionale. Situata idealmente tra Sion e Martigny, gode di un ambiente tranquillo pur essendo vicina ai servizi essenziali.
Caratteristiche principali:
* Superficie abitabile: 237 m² su tre livelli
* Seminterrato: 96 m², garage per tre veicoli e locali tecnici adiacenti
* Vendita solo come residenza principale
2. Lavori eseguiti
La casa è attualmente...
Dettagli immobile
- Disponibile dal
- 16.10.2025
- Stanze
- 7.5
- Anno di ristrutturazione
- 2024
- Superficie abitabile
- 237 m²
- Volume dell'edificio
- 1069 m³



