Villa in vendita - 1950 Sion
Perché amerai questa proprietà
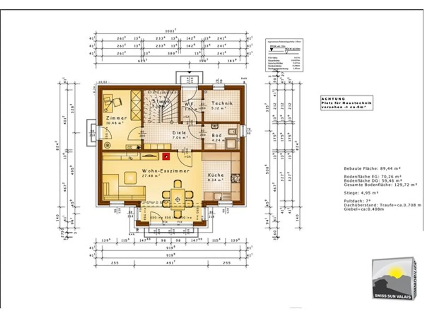
Piani personalizzabili
Ampia terrazza per relax
Struttura in legno ecologica
Organizza una visita
Prenota una visita con oggi!
1° rete immobiliare valais ®
1° RETE IMMOBILIARE VALAIS ®.............................. SWISS SUN VALAIS ®
ESCLUSIVAMENTE MONDO
Il tuo agente SOLIDAIRE
Creatore di preferiti ®
Per R1, R2 o rendimento locativo
.
CLICCA sul link per la VISITA VIRTUALE (o COPIA/INCOLLA):
https://www.swisssunvalais.ch/achat,maison-valais-je-suis-rosa-bianca-jolie-villa-ind-a-batir-55-pces-de-130-m2-net-a-vendre,0039876037
.
Abbiamo l'onore di presentare "Rosa Bianca": bel progetto per costruire una villa indipendente di 5.5 stanze di 130 m2 netti, situa...
Dettagli immobile
- Disponibile dal
- Su accordo
- Bagni
- 2
- Servizi igienici
- 2
- Parcheggio esterni
- 2
- Anno di costruzione
- 2019
- Superficie abitabile
- 130 m²



