Chalet in vendita - 1942 Le Châble VS
Perché amerai questa proprietà
Finiture interne personalizzabili
Posizione soleggiata e tranquilla
Vista mozzafiato sulle montagne
Organizza una visita
Prenota una visita con Nicolas oggi!
VAL DE BAGNES (Le Levron) Chalet 6 camere di 283 m2 di superficie di vendita
Chalet eccezionale - Vista panoramica - Le Levron (Val de Bagnes)
Solo per residenza principale (LFAIE)
Situato nel caratteristico villaggio di Levron, nel cuore del Val de Bagnes, questo chalet eccezionale beneficia di un ambiente tranquillo, soleggiato e di una vista panoramica mozzafiato sulle montagne circostanti.
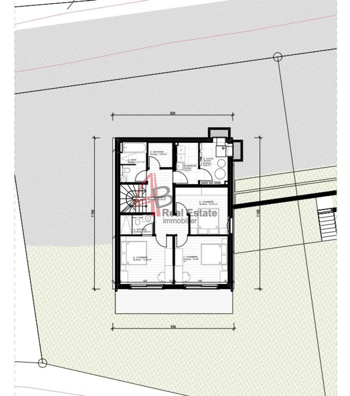
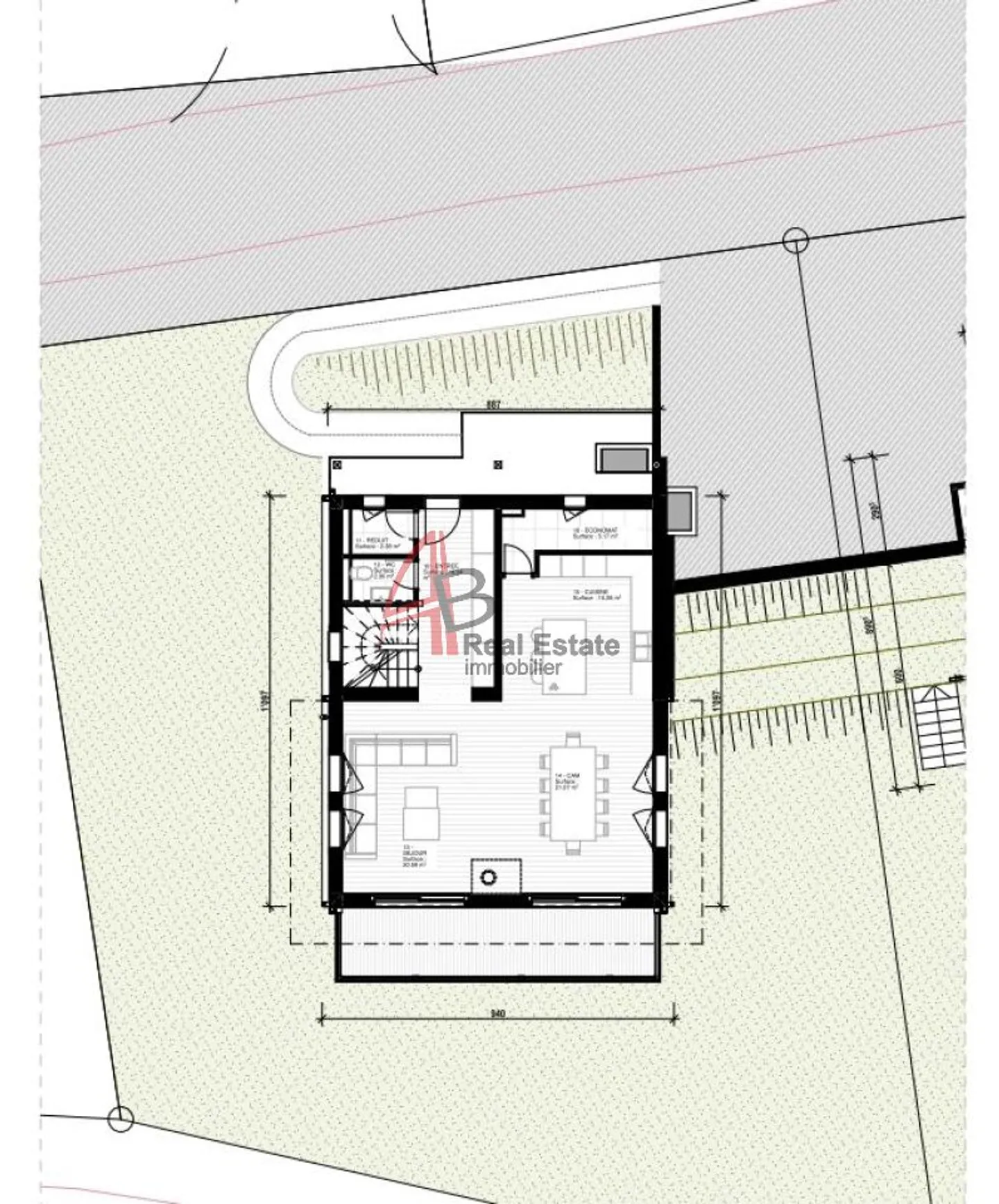
Con una superficie di vendita di 283,90 m², questo chalet individuale di 6 stanze distribuite su 3 livelli è attualmente realizzato in stato grezzo (struttura e involucro completament...
Dettagli immobile
- Disponibile dal
- Su accordo
- Stanze
- 6.5
- Bagni
- 4
- Superficie abitabile
- 283 m²
- Superficie utilizzabile
- 283 m²




