Villa in vendita - 1871 Choëx
Perché amerai questa proprietà
Ingresso elegante con scala
Ampio soggiorno con balcone
Terrazza privata per le camere
Organizza una visita
Prenota una visita con Gianni oggi!
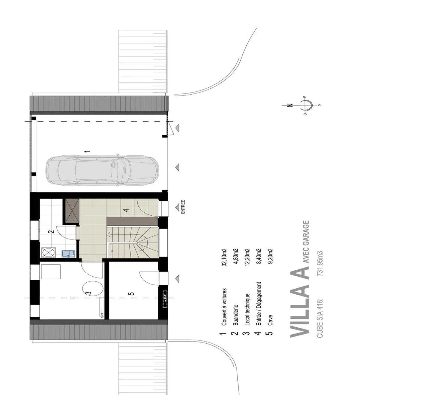
Villa indipendente di 4,5 locali con splendida vista sulla pianura.
Villa indipendente di 4,5 locali con splendida vista sulla pianura.Situata in un contesto privilegiato, questa villa eccezionale è accessibile tramite una strada privata che conduce direttamente all'ultimo piano della residenza. A questo livello, la parte Est è occupata da un ampio garage chiuso, mentre la parte Ovest offre l'ingresso principale, un'elegante scala che collega i diversi piani, nonché spazi pratici come una lavanderia, un locale tecnico e una cantina.
Al livello intermedio, sarete ...
Dettagli immobile
- Disponibile dal
- Su accordo
- Stanze
- 4.5
- Anno di costruzione
- 2025
- Superficie abitabile
- 173 m²
- Superficie utilizzabile
- 231 m²
- Superficie terreno
- 451 m²




