Casa a schiera in vendita - Chemin De Remontet 18, 1536 Combremont-le-Petit
Perché amerai questa proprietà
Ambiente verde esclusivo
Interni personalizzabili
Opzioni di soffitta spaziosa
Organizza una visita
Prenota una visita con Synergimmo oggi!
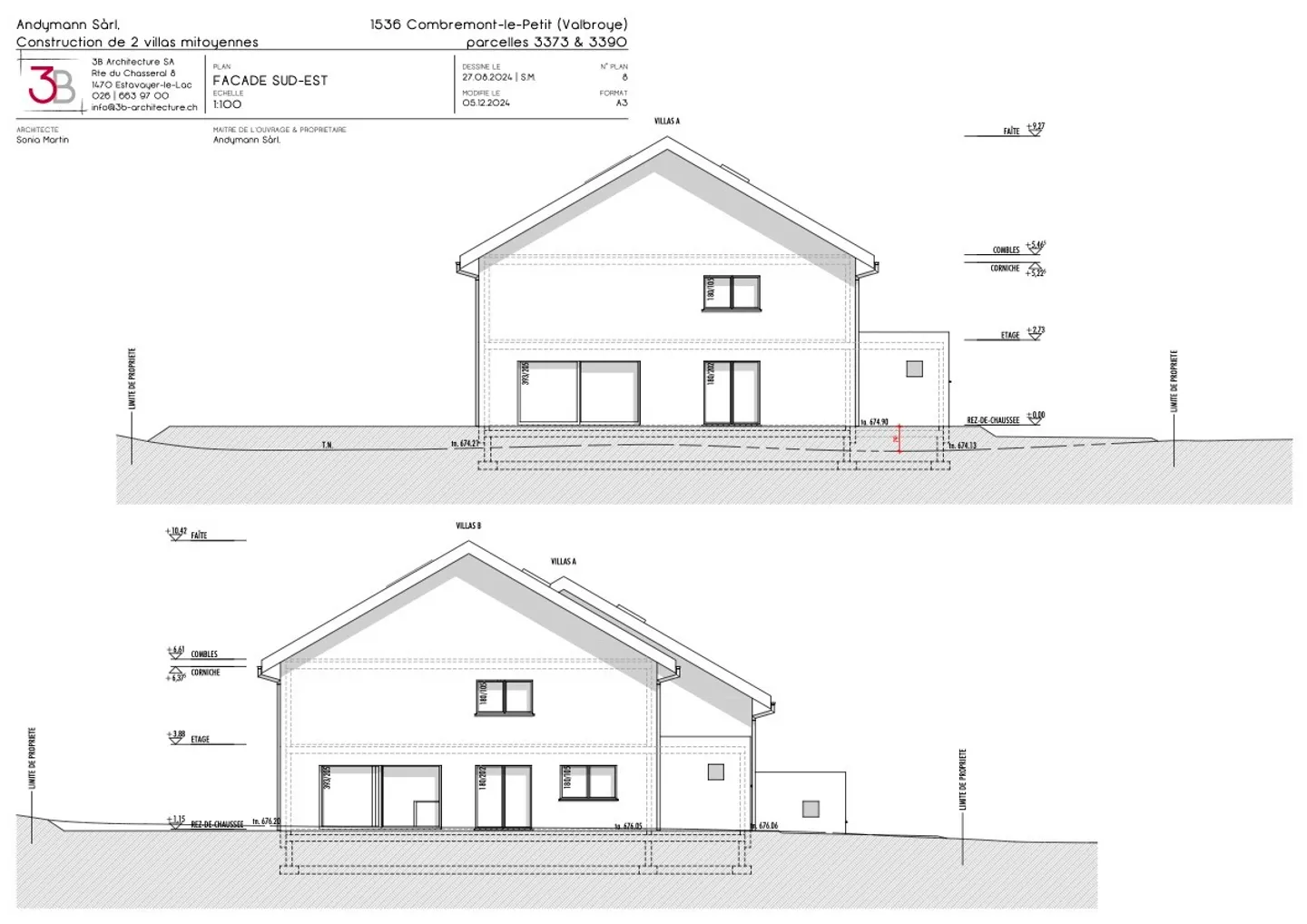
Villa neuve sur plan dans un espace verdoyant
Villa d'architecte mitoyenne de 4,5 ou 5,5 pièces avec un terrain exclusif de 425 m2 à Combremont-le-Petit.
LES ATOUTS EN UN COUP D'OEIL
- Villa d'architecte
- Construction traditionnelle
- Intérieurs sur mesure
- Cadre champêtre et nature
- Vue dégagée
- 32m2 habitables supplémentaires en option...
SITUATION
Le charmant village de Combremont du district de la Broye est situé dans le canton de Fribourg avec une proximité immédiate d'Estavayer-le-Lac et Payerne :
</ul>
LA VILLA
Le modèle présenté (villa A) offre de gr...
Dettagli immobile
- Disponibile dal
- Su accordo
- Stanze
- 5.5
- Anno di costruzione
- 2025
- Superficie abitabile
- 132 m²
- Superficie utilizzabile
- 215 m²
- Superficie terreno
- 442 m²




