1 / 8

Casa singola in affitto - Brennofenstrasse 18, 4914 Roggwil BE

5.5 rooms • 153 m² • 320 m² Plot
CHF 895’000.-
CHF 5’850 m²

Perché amerai questa proprietà

Accesso al giardino privato

Design interno personalizzabile

Costruzione a risparmio energetico

Organizza una visita

Prenota una visita con AG oggi!

AG
Questa descrizione è stata tradotta automaticamente da Tedesco.

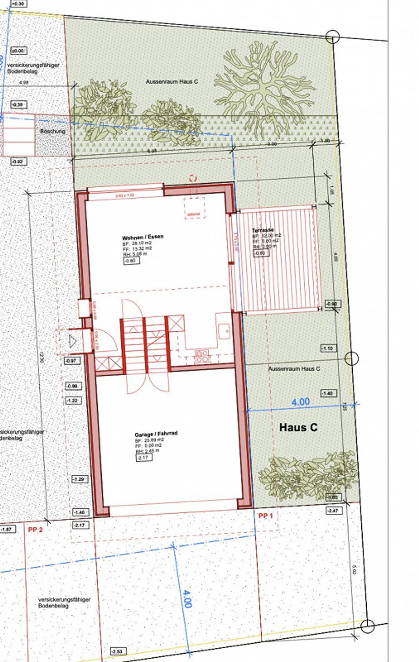
Casa unifamiliare di 5,5 stanze

Nuova costruzione di una casa unifamiliare di 5,5 stanze a Roggwil BE – La tua casa

In Brennofenstrasse 18, 4914 Roggwil BE, sta nascendo una moderna casa unifamiliare di 5,5 stanze con un concetto spaziale ben pensato, giardino privato e garage – perfetta per famiglie o coppie con bisogno di spazio. Roggwil combina la tranquillità rurale con la vicinanza a Langenthal e impressiona con scuole, negozi e ottimi collegamenti di trasporto.

La casa è attualmente in fase di pianificazione – quindi hai l...

Dettagli immobile

Disponibile dal
Su accordo
Stanze
5.5
Anno di costruzione
2026
Superficie abitabile
153
Superficie terreno
320

Caratteristiche

Garage
Parcheggio
Vista libera
Cantina

Agenzia

Località

Brennofenstrasse 18, 4914 Roggwil BE

Fonti