Villa in vendita - Lousse 15, 1987 Hérémence
Perché amerai questa proprietà
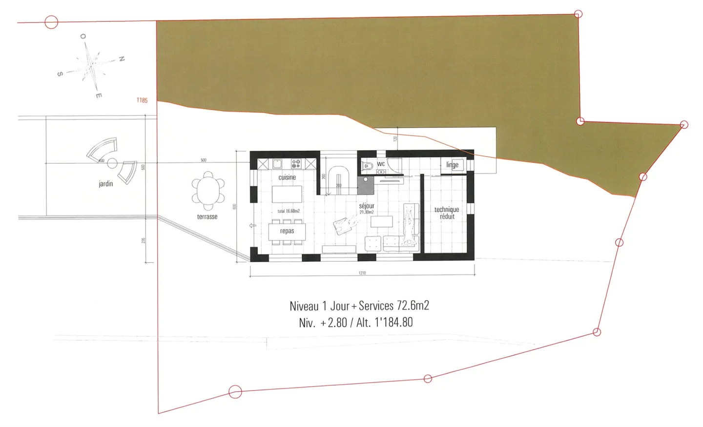
Giardino soleggiato (30m2)
Ampia terrazza (30m2)
Contributo finanziario di 50'000 CHF
Organizza una visita
Prenota una visita con Claire oggi!
Magnifica villa di 4,5 locali in vendita
Scoprite questa magnifica villa indipendente situata a Hérémence, offerta da Claire Immobilier come residenza principale. Nessuna PPE, siete proprietari della casa e del terreno.
Con i suoi 160 m2, questa villa indipendente di 4,5 locali offre uno spazio abitativo ampio con 3 camere da letto e 3 bagni. Potrete godere di una terrazza di 30 m2 e di un magnifico giardino di 30 m2. Il terreno è di 471 m2.
Posti auto esterni coperti: 2
La promozione "La Dent d'Hérens" a Hérémence è un vero gioiello che ...
Dettagli immobile
- Disponibile dal
- Su accordo
- Stanze
- 4.5
- Anno di costruzione
- 2023
- Superficie abitabile
- 160 m²
- Superficie utilizzabile
- 211 m²
- Superficie terreno
- 500 m²




