Casa singola in vendita - 1295 Tannay
Perché amerai questa proprietà
Design architettonico moderno
Giardini e logge private
Finiture di alta qualità
Organizza una visita
Prenota una visita oggi!
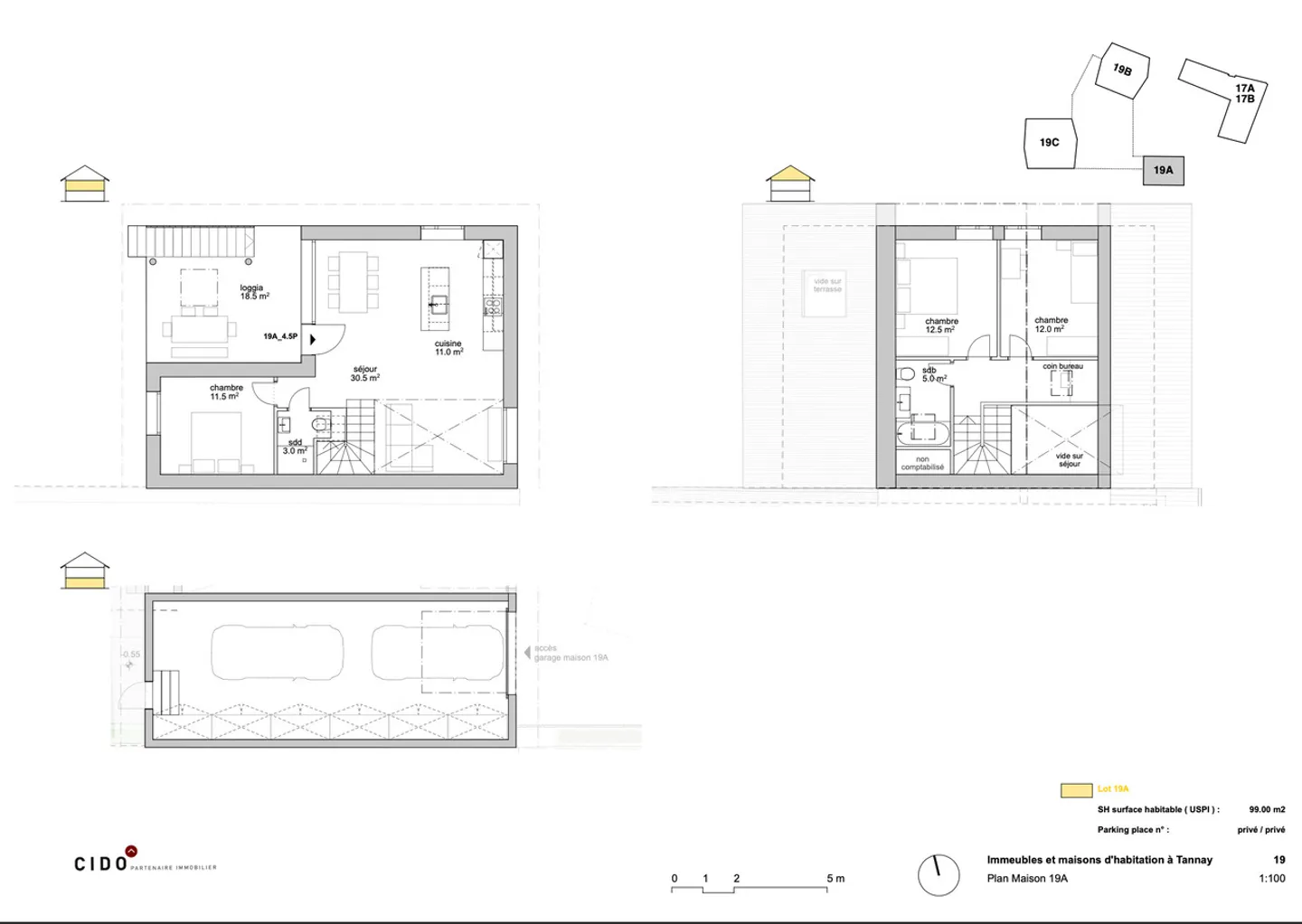
Lot - 19A - Casa di villaggio con 4.5 stanze
Il progetto CLOS 17 si inserisce in un quartiere tranquillo e residenziale del comune di Tannay, su un lotto verde nel centro del villaggio. La costruzione si adatta e sfrutta saggiamente il terreno offrendo a ciascun appartamento belle logge e/o giardini privati.
La residenza propone 6 appartamenti da 3.5 a 5.5 stanze e 3 case di 4.5 stanze. Alcuni lotti al piano terra beneficiano di una sala giochi da allestire.
La residenza Clos 17 saprà conquistarvi con le sue prestazioni di qualità e il suo...
Dettagli immobile
- Disponibile dal
- Su accordo
- Stanze
- 4.5
- Superficie abitabile
- 120 m²
- Superficie utilizzabile
- 158 m²
- Superficie terreno
- 3031 m²




