1 / 13

Casa singola in affitto - 1218 Le Grand-Saconnex

6 rooms • 150 m² • 461 m² Plot
CHF 2’390’000.-
CHF 10’864 m²

Perché amerai questa proprietà

Posizione strategica vicino all'aeroporto

Ampio seminterrato di 70 m²

Altezza soffitti fino a 2,80 m

Organizza una visita

Prenota una visita con Nathalie oggi!

Nathalie ASSIR
COMPTOIR IMMOBILIER SA
Questa descrizione è stata tradotta automaticamente da Francese.

Rubeus, 4 ville thpe

Conosciuta per la sua vicinanza alle Organizzazioni Internazionali, all'aeroporto, alla stazione CFF e alla rete autostradale, la municipalità di Grand-Saconnex offre una posizione strategica.

Le quattro ville THPE sono di tipo gemello, consentendo a ciascuna di godere di una posizione a capanna.

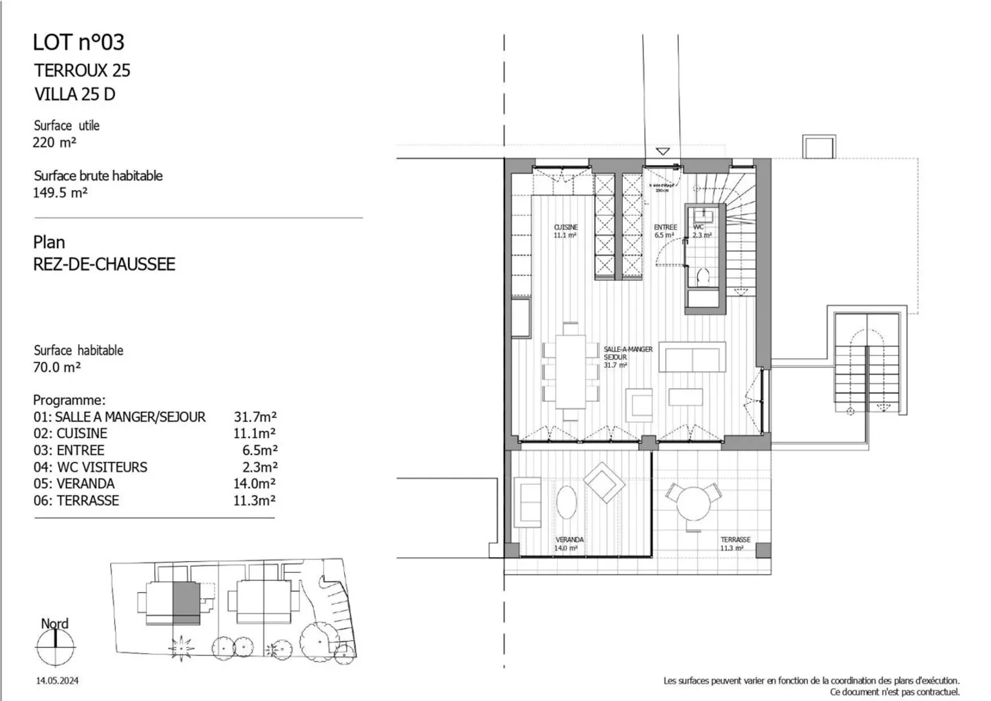
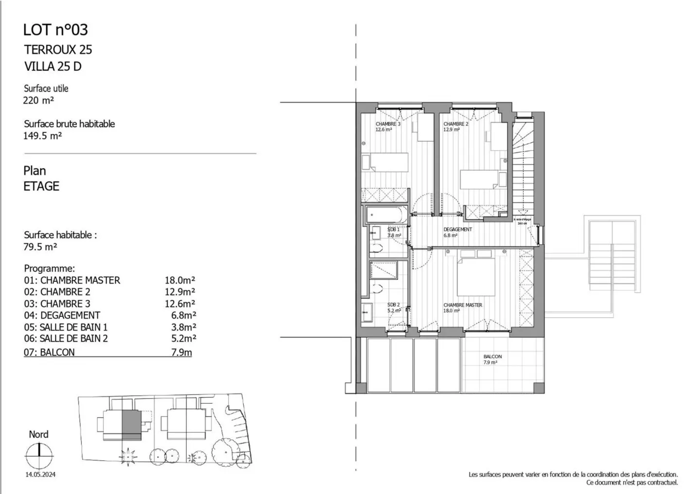
Superfici, altezza del soffitto e dettagli del seminterrato

- Piano terra: 70 m². Altezza del soffitto: 2,80 m.

- Veranda: 14 m². Altezza del soffitto: 2,80 m.

- 1° piano: 80 m². Altezza del soffitto: 2...

Dettagli immobile

Disponibile dal
Su accordo
Stanze
6
Anno di costruzione
2025
Superficie abitabile
150
Superficie utilizzabile
220
Superficie terreno
461

Caratteristiche

Balcone
Parcheggio

Agenzia

COMPTOIR IMMOBILIER SA
Indirizzo:cours de Rive 7, 1204, Genève
Nathalie ASSIR
Ref: Lot 3D.84820208A

Località

1218 Le Grand-Saconnex

Fonti