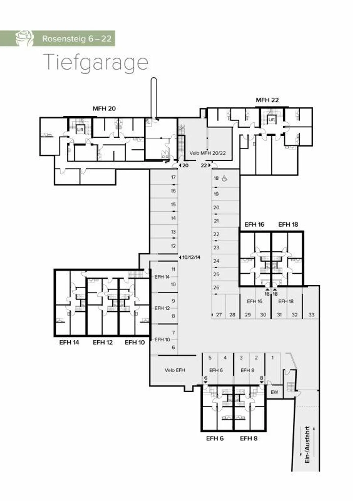
Casa singola in vendita - Rosensteig 12, 8370 Sirnach
Perché amerai questa proprietà
Soluzioni energetiche sostenibili
Ampio patio giardino soleggiato
Architettura moderna e luminosa
Organizza una visita
Prenota una visita con Vetter oggi!
262 m² | Casa unifamiliare 5.5 stanze "Rosenberg"
262 m² | Casa unifamiliare 5.5 stanze
Immagina di vivere in una casa che si adatta perfettamente al tuo stile di vita - moderna, sostenibile e confortevole. Questo è esattamente ciò che il nostro progetto di nuova costruzione <> ti offre. L'attraente quartiere residenziale unisce la tranquillità e l'idillio dell'ambiente rurale con la vicinanza e i comfort del centro del villaggio.
Il completamento e l'occupazione delle proprietà sono previsti per aprile 2026.
Il progetto è costruito secondo ...
Dettagli immobile
- Disponibile dal
- Su accordo
- Stanze
- 5.5
- Anno di costruzione
- 2026
- Superficie abitabile
- 262 m²
- Superficie terreno
- 256 m²
- Volume dell'edificio
- 1000 m³



