Casa singola in vendita - Gummweg 117, 3612 Steffisburg
Perché amerai questa proprietà
Appartamento per ospiti separato
Ampio giardino
Ristrutturazioni recenti 2022-2024
Organizza una visita
Prenota una visita con Markus oggi!
Casa unifamiliare con appartamento indipendente a Steffisburg - Comfort abitativo con valore aggiunto
Ampia casa unifamiliare con appartamento indipendente in posizione tranquilla a Steffisburg
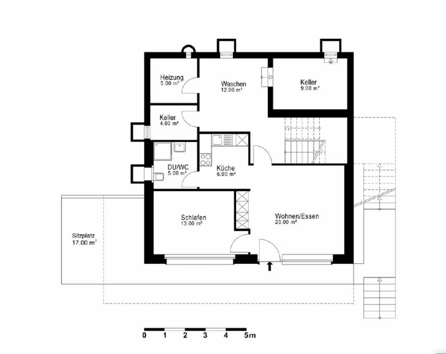
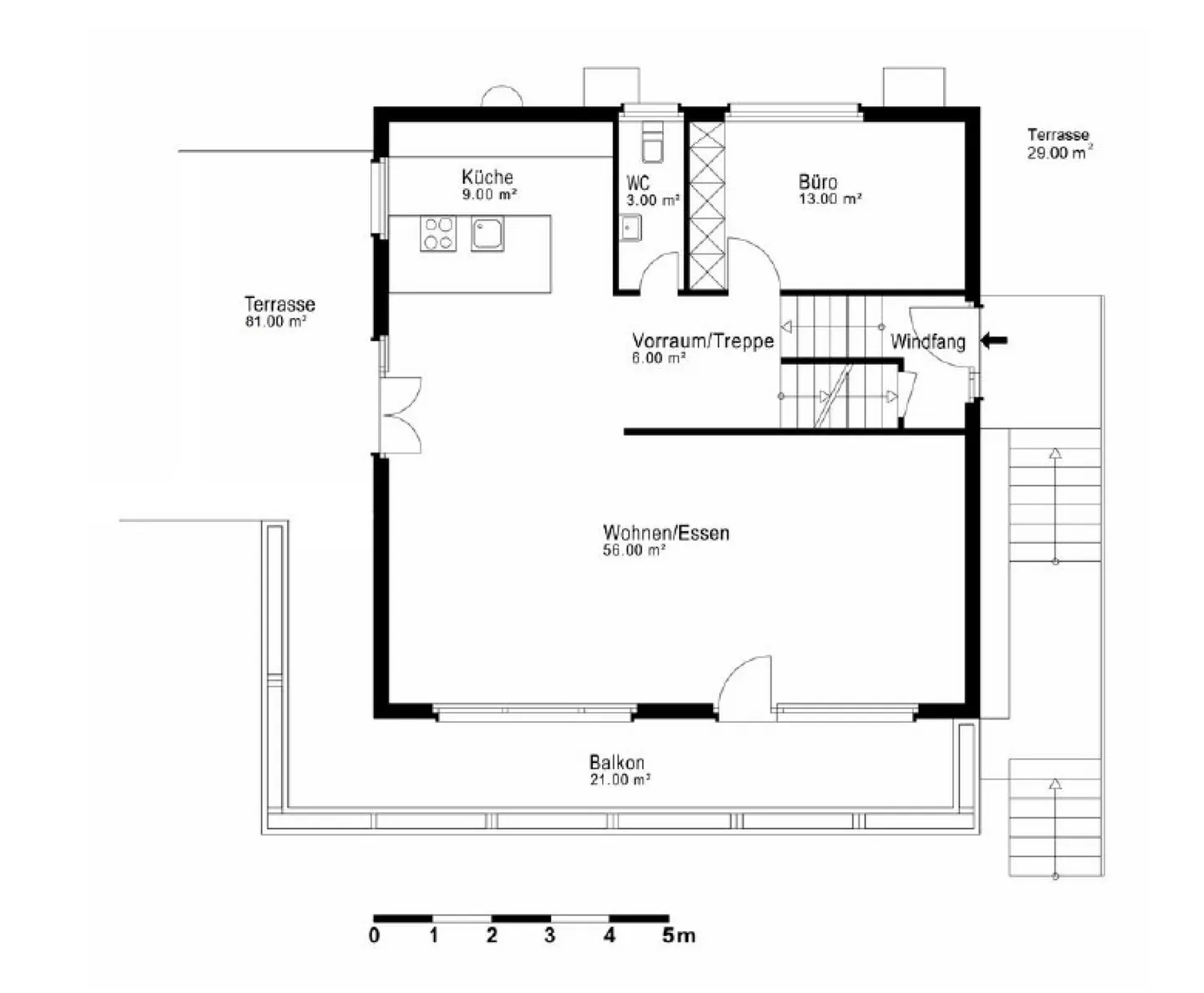
* Superficie abitabile: 172 m² (appartamento principale) + 44 m² (appartamento indipendente)
* Locali: 5,5 locali (casa) + 2,5 locali (appartamento indipendente)
* Terreno: 889 m²
* Anno di costruzione: 1986
* Ristrutturazioni: 2022-2024
* Parcheggio: 2 garage (di cui 1 posto auto coperto) + 1 posto auto esterno
Descrizione dell'immobile
Questa proprietà ben tenuta e continuamente ristrutturata si trova in una tr...
Dettagli immobile
- Disponibile dal
- Su accordo
- Stanze
- 7.5
- Anno di costruzione
- 1986
- Anno di ristrutturazione
- 2024
- Superficie abitabile
- 213 m²
- Superficie terreno
- 889 m²
- Volume dell'edificio
- 893 m³



