Casa singola in vendita - 1124 Gollion
Perché amerai questa proprietà
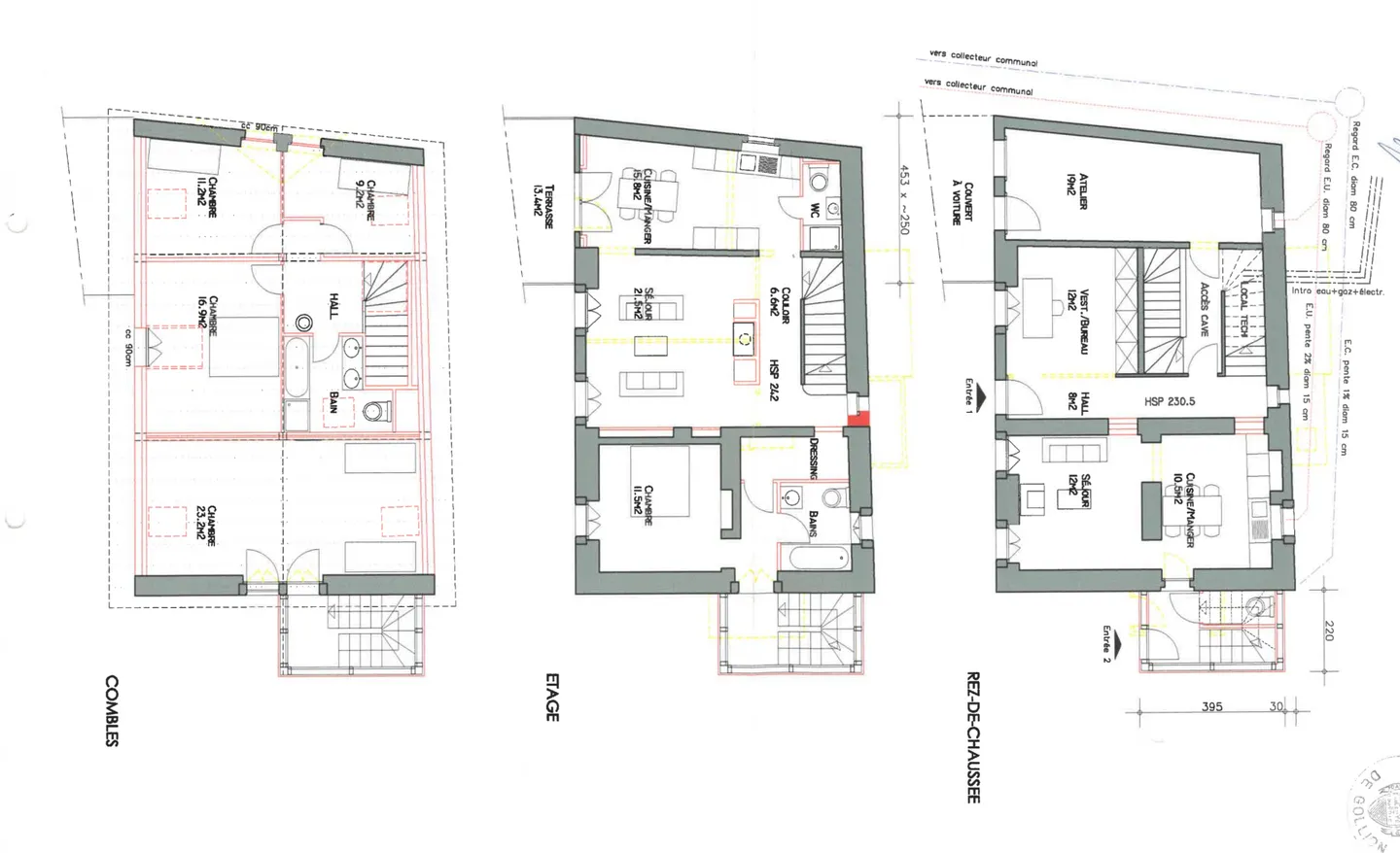
Due appartamenti separati
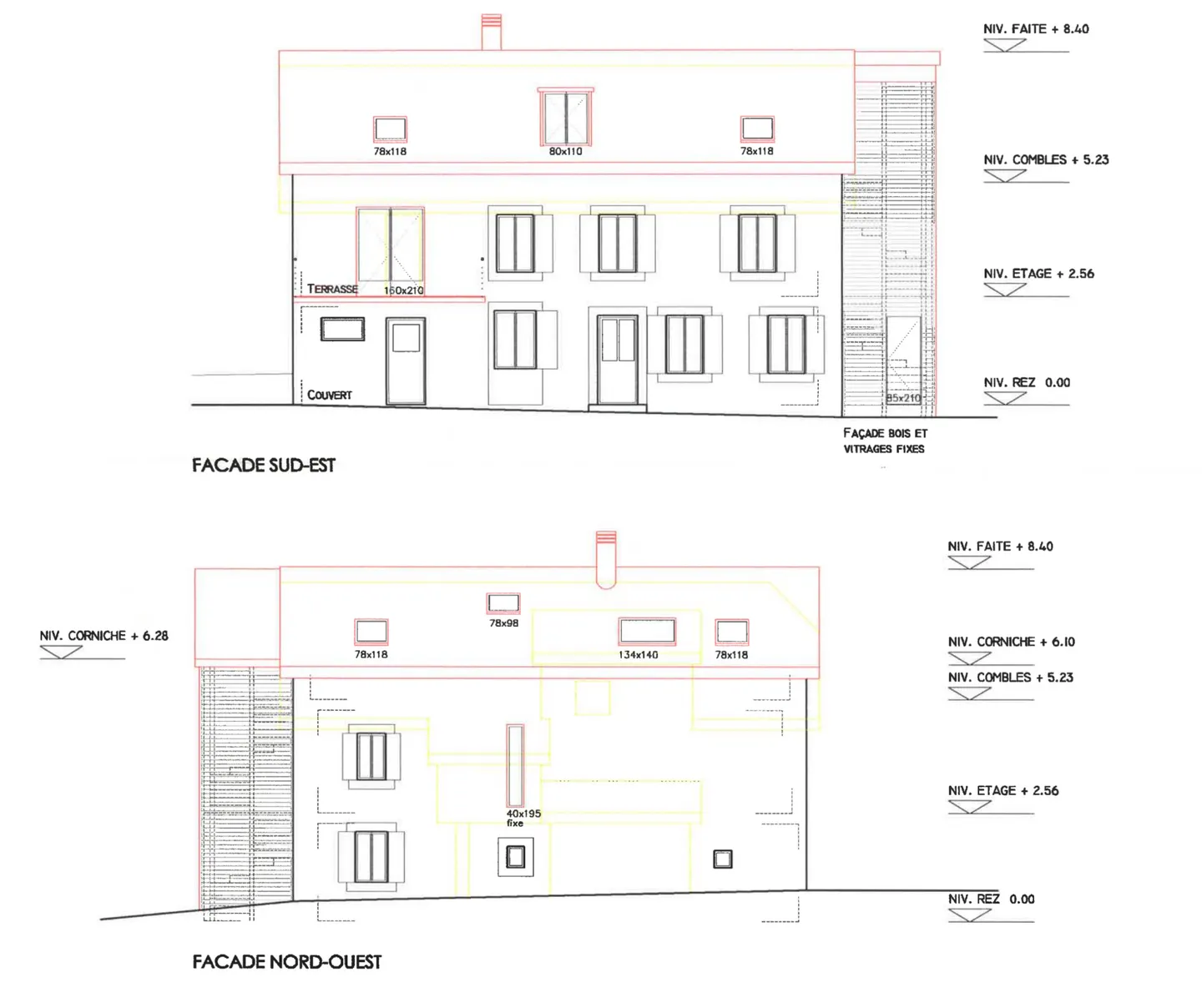
Ampia terrazza con vista
Potenziale di investimento
Organizza una visita
Prenota una visita oggi!
Casa familiare o investitore
Casa familiare
bella casa indipendente nel caratteristico villaggio di Gollion.
La casa dispone di due appartamenti su tre piani con posti auto esterni. Possibilità di unire i due appartamenti per creare una bella casa indipendente.
1° appartamento :
3.5 stanze
- Al piano terra, cucina attrezzata che si affaccia sul soggiorno.
- Primo piano, una piccola camera di 11.5 m2 con cabina armadio e bagno sul pianerottolo.
- Sottotetto, una grande camera di 23 m2.
- 2 posti auto completano questo lotto...
Dettagli immobile
- Disponibile dal
- 01.01.1970
- Stanze
- 10
- Anno di costruzione
- 1880
- Anno di ristrutturazione
- 2015
- Superficie abitabile
- 225 m²
- Superficie terreno
- 441 m²



