Casa singola in vendita - Untere Rainstrasse 11, 5042 Hirschthal
Perché amerai questa proprietà
Vista panoramica mozzafiato
Giardino spazioso con piscina
Oasi benessere privata
Organizza una visita
Prenota una visita con Albert oggi!
Qualità della vita pura!
Qualità della vita pura: Casa unifamiliare con piscina in una posizione soleggiata
Hirschthal si trova nella media Suhrental, a circa dieci minuti di auto a sud di Aarau. Appartenente al cantone di Argovia e al distretto di Aarau, il comune confina con Schöftland, Holziken, Muhen e Unterkulm.
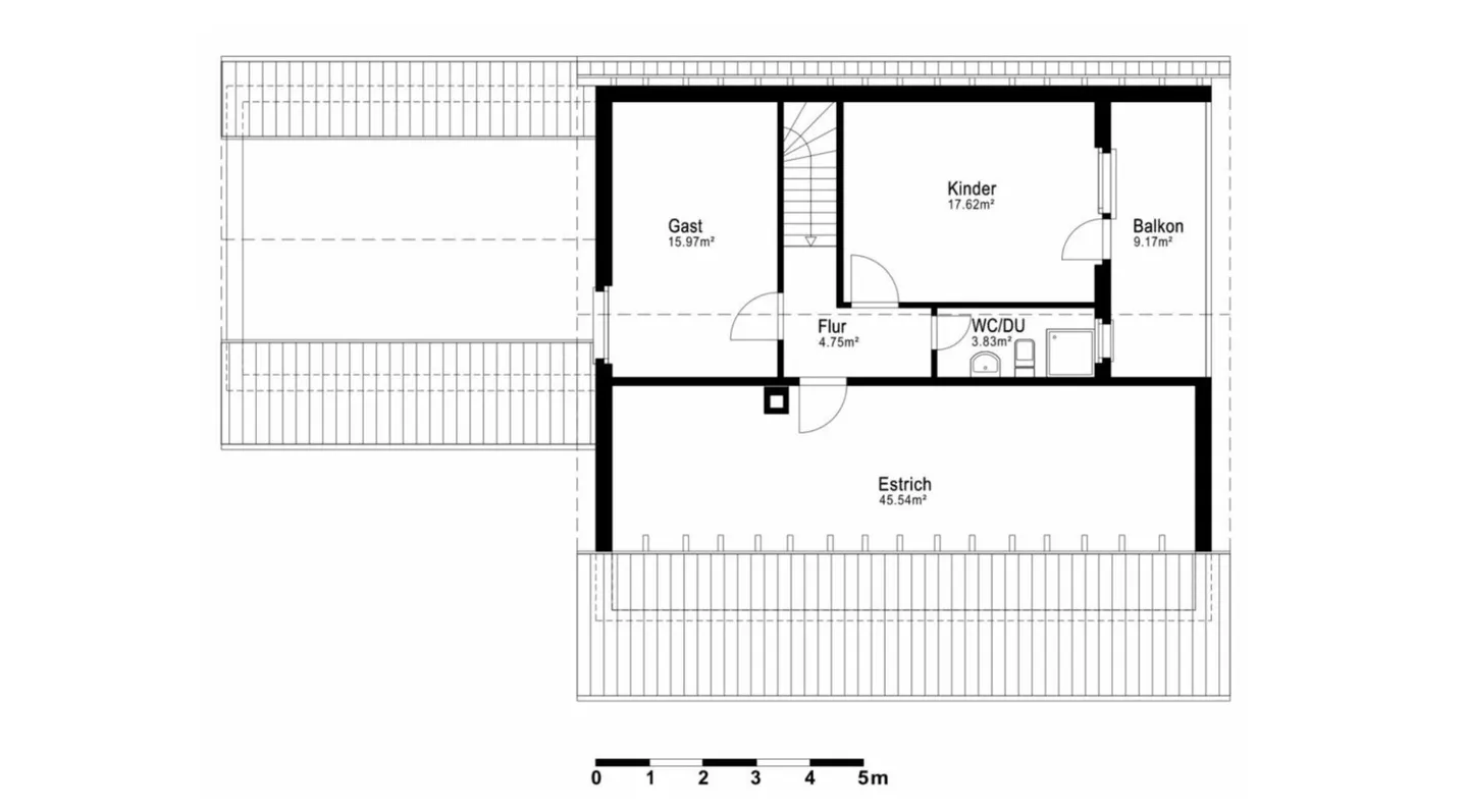
Questa spaziosa casa unifamiliare di 6,5 stanze con grande potenziale colpisce per la sua unica posizione in collina e la vista panoramica. Grazie all'orientamento a sud-ovest, la casa gode di una luce ottima...
Dettagli immobile
- Disponibile dal
- Su accordo
- Stanze
- 6.5
- Anno di costruzione
- 1975
- Superficie abitabile
- 200 m²
- Superficie terreno
- 890 m²



