Casa singola in vendita - Fliederweg 11, 5018 Erlinsbach
Perché amerai questa proprietà
Piscina biologica per relax
Terrazze in Kebony sostenibile
Tetto modernizzato con lucernari
Organizza una visita
Prenota una visita con Daniel oggi!
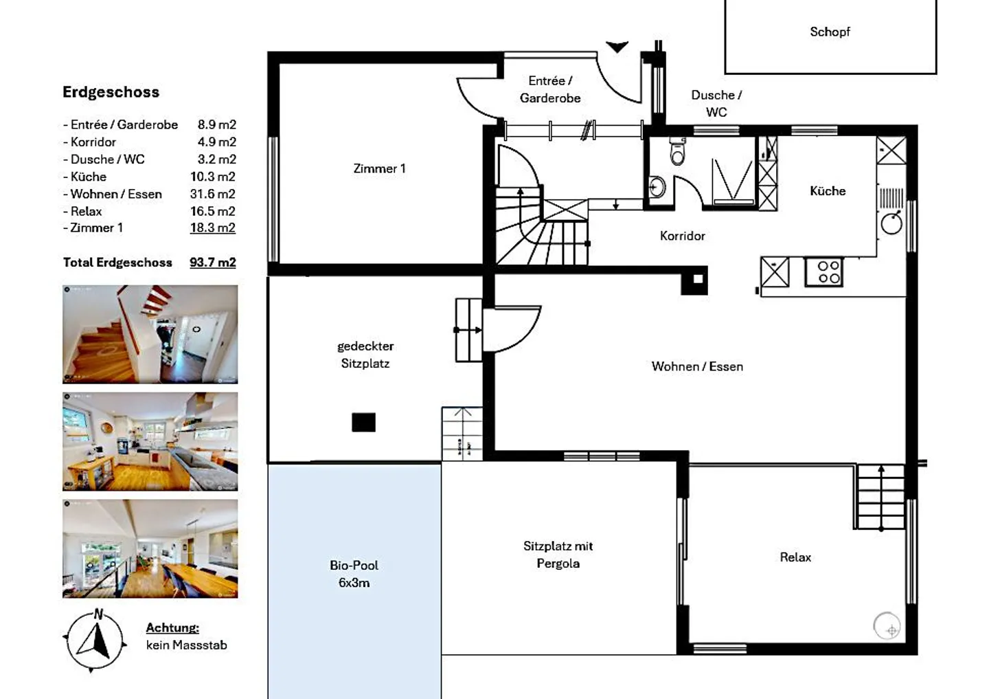
Casa unifamiliare di 6 stanze in una posizione attraente con giardino benessere e piscina biologica
La casa unifamiliare è situata in modo centrale e tranquillo su Fliederweg in una zona di 30 km/h. La strada del quartiere consente solo l'accesso ai residenti ed è chiusa al traffico di transito. Le scuole, i negozi e la fermata dell'autobus sono raggiungibili in 3-5 minuti a piedi.
La casa, costruita nel 1951, è stata completamente svuotata e ristrutturata in una prima fase nel 2005. Al piano terra, le stanze sono state aperte e ampliate con un'estensione. L'intera tecnologia dell'edificio, com...
Dettagli immobile
- Disponibile dal
- Su accordo
- Stanze
- 6
- Anno di costruzione
- 1951
- Anno di ristrutturazione
- 2021
- Superficie abitabile
- 162 m²
- Superficie utilizzabile
- 214 m²
- Superficie terreno
- 507 m²



