1 / 18

Casa bifamiliare in affitto - 1052 Le Mont-sur-Lausanne

5.5 rooms • 314 m² • 700 m² Plot
CHF 1’880’000.-
CHF 5’987 m²

Perché amerai questa proprietà

Ampia superficie abitabile di 165 m²

Balcone e terrazza privati

Pannelli solari ecologici

Organizza una visita

Prenota una visita con Benoit oggi!

Benoit Legay
LB Immobilier
Questa descrizione è stata tradotta automaticamente da Tedesco.

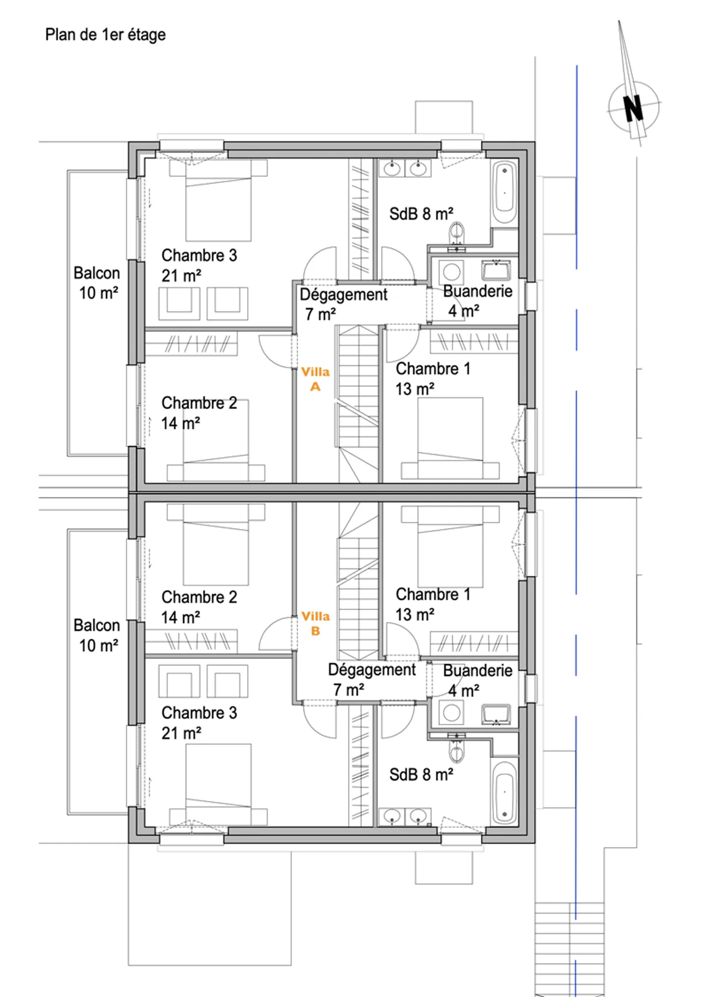
Villa con 5,5 stanze, veranda, capanno da giardino e garage (lot b)

Scopri questa magnifica villa con 5,5 stanze come da progetto, situata nella charmante cittadina di Mont-sur-Lausanne. Questa proprietà combina comfort moderno ed eleganza in un ambiente verde.

Punti salienti della proprietà:

* Superficie abitabile di 165 m² su 2 piani

* Terreno di 700 m² con ampio spazio esterno

* Volume abitativo di 763 m³

* 2 bagni per un comfort ottimale

* Balcone/Terrazza per godere delle giornate di sole

* Scavo parziale o completamente opzionale

* Parcheggio e garage per un'auto

*...

Dettagli immobile

Disponibile dal
25.03.2025
Stanze
5.5
Anno di costruzione
2025
Superficie abitabile
314
Superficie utilizzabile
314
Superficie terreno
700
Volume dell'edificio
763

Caratteristiche

Balcone
Parcheggio
Adatto ai bambini

Agenzia

LB Immobilier
Indirizzo:Route de Granges 66, 1616, Attalens
Ref: axucy.jvk8i

Località

1052 Le Mont-sur-Lausanne

Fonti