Appartamento in vendita - Vicolo Fontile, 6648 Minusio
Perché amerai questa proprietà
Spazio abitativo luminoso
Caratteristiche energetiche sostenibili
Design interno personalizzabile
Organizza una visita
Prenota una visita oggi!
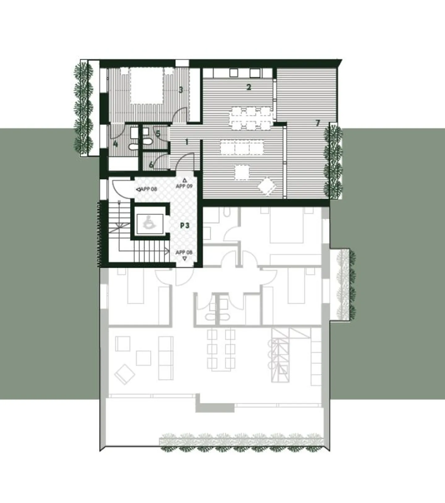
IN VENDITA A MINUSIO - APPARTAMENTO DI 2,5 LOCALI IN NUOVA COSTRUZIONE
La nuova "Residenza Fontile" a Minusio è composta da 8 appartamenti (residenza principale). L'edificio si trova in una zona molto tranquilla, circondata dal verde, da cui è possibile raggiungere facilmente il lago con la sua splendida passeggiata e tutti i servizi pubblici e le comodità offerti dal comune. Il volume con le sue forme semplici ed essenziali richiama gli elementi dell'architettura moderna.
L'architettura della residenza si caratterizza soprattutto per i collegamenti tra gli spazi es...
Dettagli immobile
- Disponibile dal
- Su accordo
- Stanze
- 2.5
- Bagni
- 2
- Anno di costruzione
- 2024
- Piano
- 3°



