Appartamento in vendita - Via Runs, 7031 Laax GR
Perché amerai questa proprietà
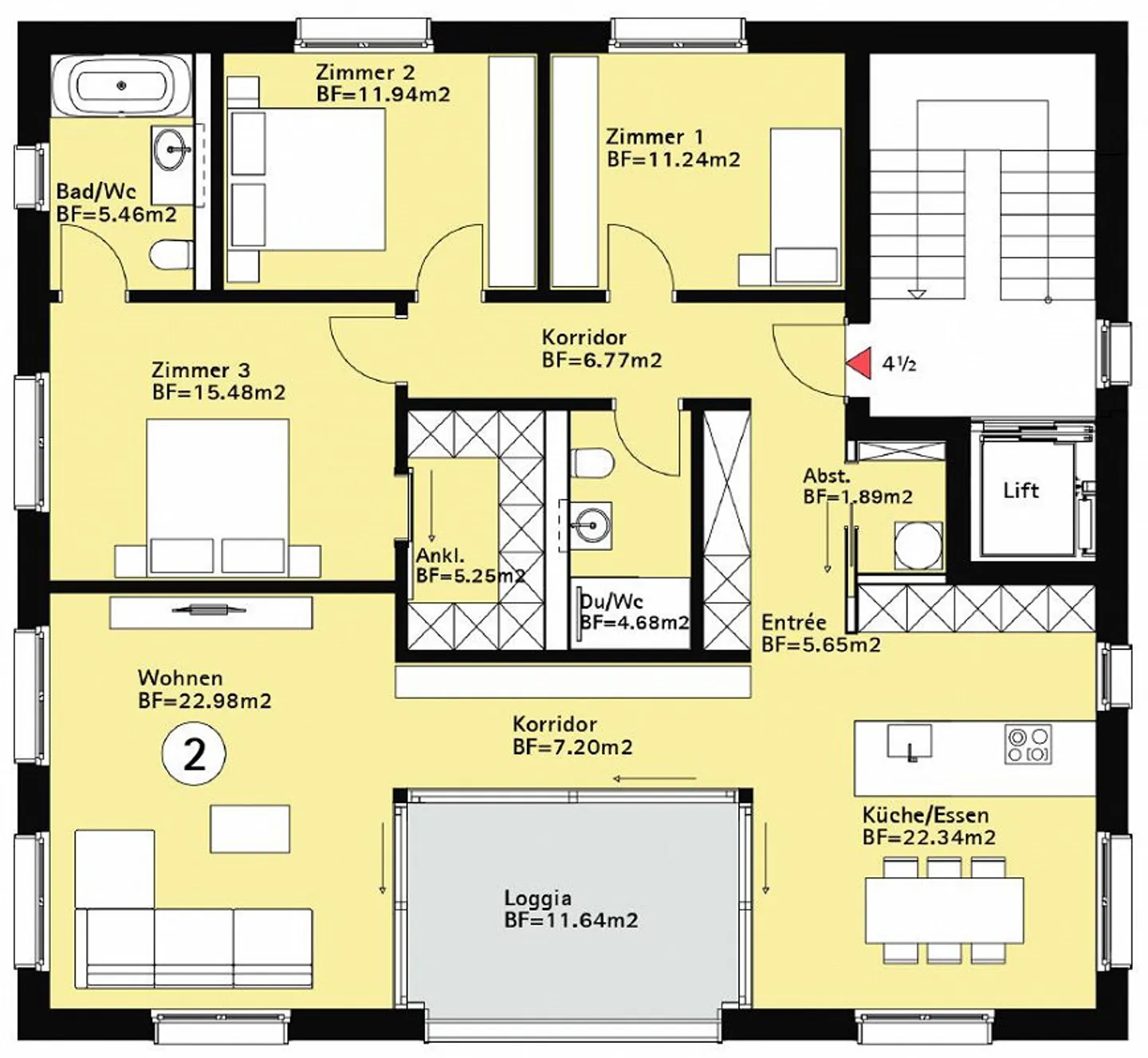
Spazioso layout di 149m²
Terrazza coperta e loggia
Elettrodomestici V-Zug di alta gamma
Organizza una visita
Prenota una visita oggi!
L'opportunità: ampio appartamento di 4,5 stanze a laax
L'opportunità: Ampio appartamento di 4,5 stanze a Laax
Nell'Arena Alva, nel bellissimo Laax in Surselva, vendiamo un elegante appartamento di 4,5 stanze nella casa <<Via Runs>>. L'edificio plurifamiliare comprende quattro unità abitative modernamente sviluppate - un'atmosfera accogliente con molto comfort e fascino alpino.
I tuoi vantaggi a colpo d'occhio:
- 149m² di superficie calpestabile - luminoso e ben progettato
- ca. 12,5m² di area coperta o 11,6m² di loggia
- Soggiorno luminoso con ampie vetr...
Dettagli immobile
- Disponibile dal
- Su accordo
- Stanze
- 4.5
- Anno di costruzione
- 2025
- Piani dell'edificio
- 4



