Appartamento in vendita - Via Rampighetta, 6533 Lumino
Perché amerai questa proprietà
Vista panoramica sulla valle
Giardino o terrazza privata
Design moderno con servizi
Organizza una visita
Prenota una visita oggi!
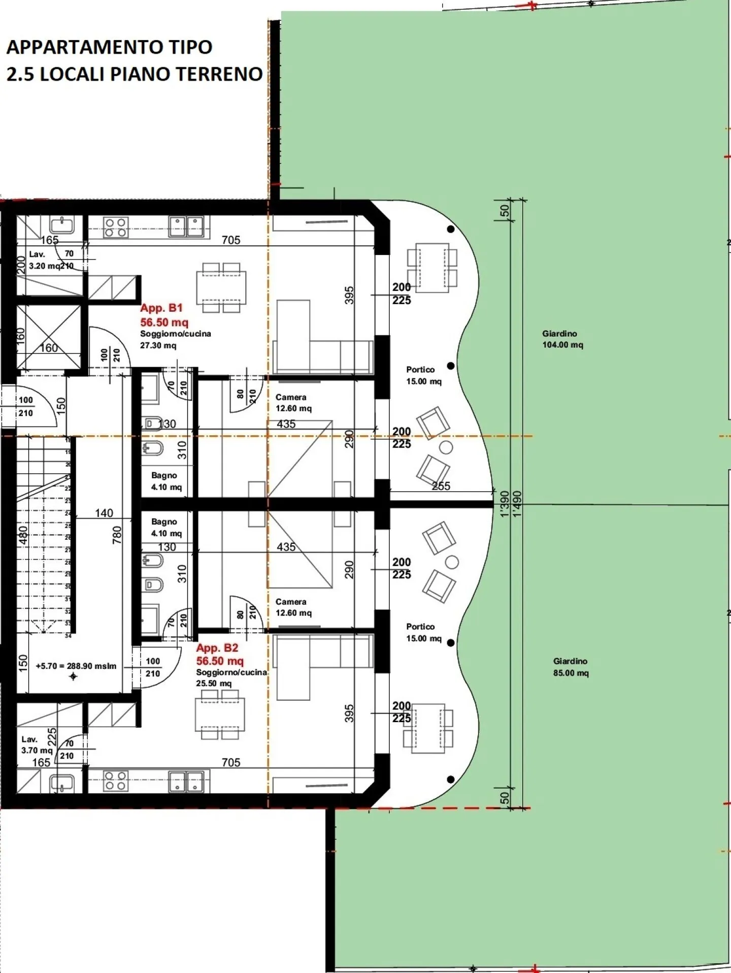
Appartamenti 2.5 locali anche seconda residenza
Questo esclusivo complesso abitativo, di prossima edificazione a Lumino, è progettato per offrire una vita di comfort e tranquillità, circondati dalla natura e con una bella vista panoramica sulla valle.
Ogni unità sarà dotata di servizi moderni, tra cui lavanderia privata, cantina e opzioni di parcheggio esterno o in autorimessa. Gli appartamenti al piano terreno godranno di giardini ad uso esclusivo, mentre quelli ai piani superiori potranno vantare ampie terrazze.
Siamo lieti di presentare la n...
Dettagli immobile
- Disponibile dal
- Su accordo
- Stanze
- 2.5
- Bagni
- 1
- Anno di costruzione
- 2025
- Superficie abitabile
- 75 m²
- Superficie utilizzabile
- 75 m²
- Piano
- Terra



