Appartamento in vendita - Via Rampighetta, 6533 Lumino
Perché amerai questa proprietà
Giardino o terrazza privata
Cucina moderna con dispensa
Vista panoramica sulla vallata
Organizza una visita
Prenota una visita oggi!
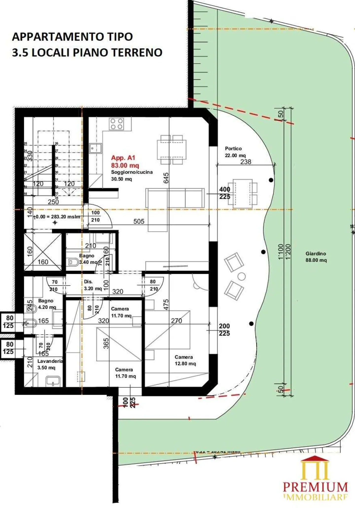
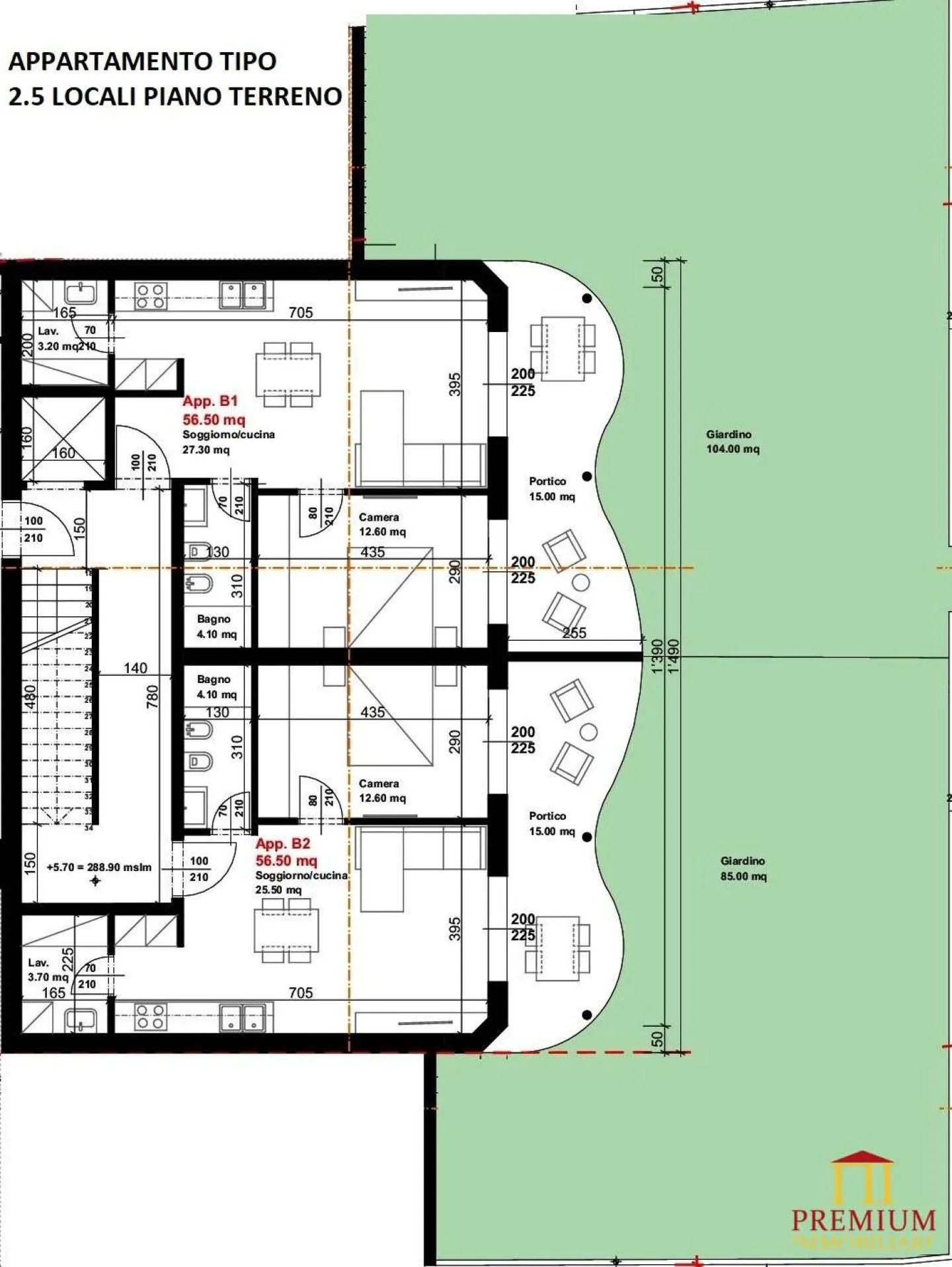
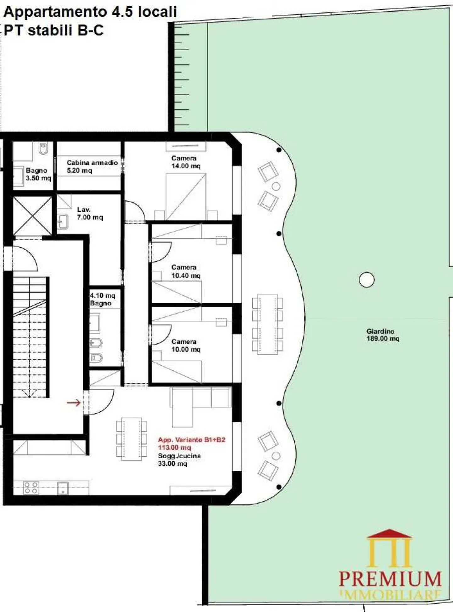
Appartamenti 4.5 locali a lumino
L'eleganza e lo spazio si fondono perfettamente negli appartamenti di 4.5 locali della Residenza Oasis, di prossima edificazione sulla bella collina di Lumino.
Situata in una posizione privilegiata, la residenza Oasis offre un ambiente sereno e rigenerante lontano dal trambusto della città, ma comunque a breve distanza dai principali servizi e attrazioni. Vivere nella residenza Oasis significa abbracciare uno stile di vita elegante, circondati dalla natura e dalla bellezza paesaggistica.
Ogni unit...
Dettagli immobile
- Disponibile dal
- Su accordo
- Stanze
- 4.5
- Bagni
- 2
- Anno di costruzione
- 2025
- Superficie abitabile
- 145 m²
- Superficie utilizzabile
- 145 m²
- Piano
- 1°



