Appartamento in vendita - Via Pozzaracchia, 6648 Minusio
Perché amerai questa proprietà
Soggiorno open space luminoso
Giardino privato di 68 m²
Finiture interne personalizzabili
Organizza una visita
Prenota una visita con Sebastiano oggi!
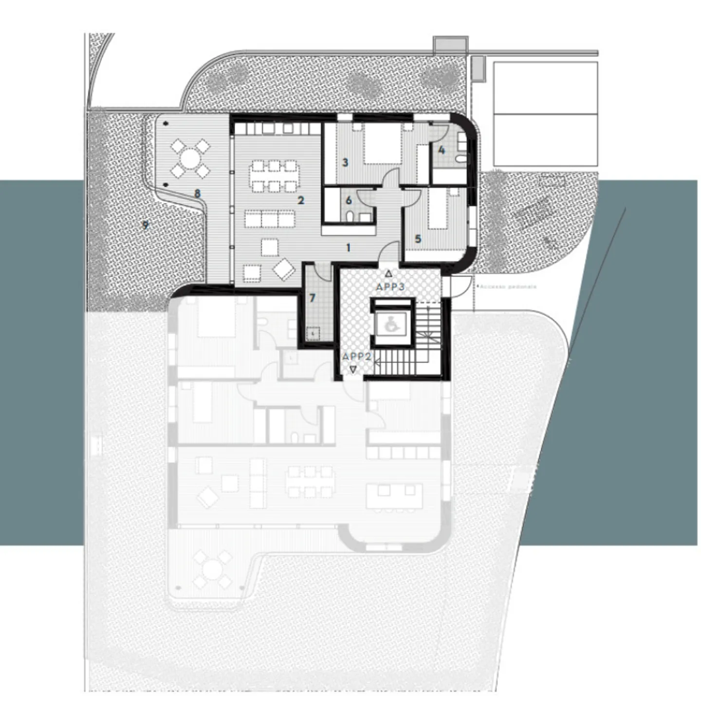
VENDESI A MINUSIO - APPARTAMENTO 3.5 LOCALI IN NUOVA COSTRUZIONE CON GIARDINO PRIVATO
VENDESI A MINUSIO - APPARTAMENTO 3.5 LOCALI IN NUOVA COSTRUZIONE CON GIARDINO PRIVATOImmersi nel verde, a pochi passi da tutti i servizi: questa è la RESIDENZA VALENTINA. Situata nella zona residenziale nord del comune di Minusio, il progetto prevede 6 appartamenti distribuiti su quattro piani.Il volume delle forme moderne e morbide richiama gli elementi dell'architettura contemporanea. Le zone giorno degli appartamenti nella residenza sono studiate in modo da garantire il maggior soleggiamento ...
Dettagli immobile
- Disponibile dal
- 01.10.2026
- Stanze
- 3.5
- Bagni
- 2
- Anno di costruzione
- 2024
- Superficie abitabile
- 86 m²
- Superficie giardino
- 68 m²
- Piani dell'edificio
- 1



