Attico in vendita - Via Parallela, 6710 Biasca
Perché amerai questa proprietà
Finestre triplo vetro
Riscaldamento a pavimento
Accesso all'ascensore al seminterrato
Organizza una visita
Prenota una visita con Claudio oggi!
Nuovo appartamento all'ultimo piano in una posizione comoda e strategica
Zona residenziale a due passi dal centro, in una posizione comoda e ben collegata.
La struttura dell'edificio è massiccia, con elementi costruttivi in mattoni e calcestruzzo armato, pareti esterne isolate con isolamento termico, pavimenti in calcestruzzo e finestre a triplo vetro.
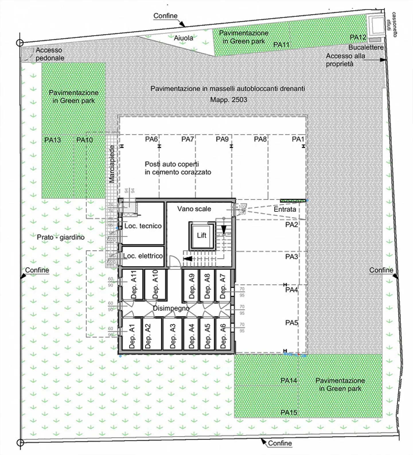
Nuova costruzione moderna in fase finale, composta da 10 appartamenti con 2,5 stanze e 1 appartamento con 4,5 stanze, distribuiti ai piani 1 e 3. Cantina e posti auto al piano terra.
L'edificio è stato progettato e concep...
Dettagli immobile
- Disponibile dal
- 14.01.2026
- Stanze
- 2.5
- Anno di costruzione
- 2021
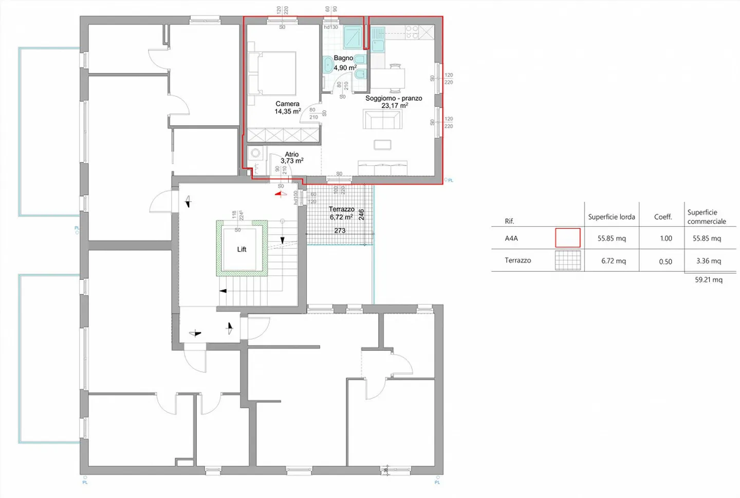
- Superficie abitabile
- 60 m²
- Piano
- 3°




