Appartamento in vendita - Via Merlina, 6962 Viganello
Perché amerai questa proprietà
Ampio soggiorno open-space
Camera matrimoniale con bagno
Accesso diretto con ascensore
Organizza una visita
Prenota una visita con Castillo oggi!
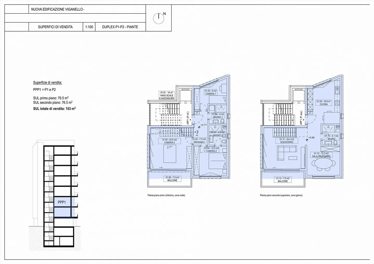
Nuova residenza! elegante duplex di 4.5 locali
Prezzo di vendita: CHF 1'300'000.-
Posteggio in autorimessa: CHF 50'000.- (cadauno, non incluso nel prezzo)
SUL:145.50 m²
Superficie Commerciale: 153.00 m²(SUL+1/2 Balconi)
Locali: 4.5
A Viganello, in una posizione residenziale comoda e ben servita, proponiamoin vendita questo raffinato appartamento duplex di nuova costruzione. L'unità si sviluppa su due livelli perfettamente equilibrati e offre ambienti ampi, funzionali e ben distribuiti.
Caratteristiche principali:
-
Zona giorno al piano superiore di ...
Dettagli immobile
- Disponibile dal
- Su accordo
- Stanze
- 4.5
- Anno di costruzione
- 2026
- Superficie abitabile
- 146 m²
- Piani dell'edificio
- 2



