1 / 4

Appartamento in affitto - Via Guidino, 6900 Paradiso

3 rooms • 150 m² • Piano terra
CHF 2’930’000.-
CHF 19’533 m²

Perché amerai questa proprietà

Vista mozzafiato sul lago

Jacuzzi privato

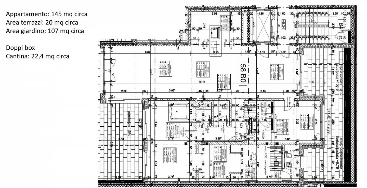
Giardino di 107 m²

Organizza una visita

Prenota una visita con MDA oggi!

MDA Group Real Estate
MDA Group Real Estate
Questa descrizione è stata tradotta automaticamente da Tedesco.

Condominio/appartamento in vendita, via guidino, a paradiso, svizzera

Questo straordinario appartamento si trova a Paradiso, in una posizione privilegiata che offre una vista mozzafiato sul lago. Con una superficie abitabile di circa 145 m², l'immobile è perfettamente progettato per sfruttare al meglio la luce naturale e gli ampi spazi.

Interni e layout: L'appartamento dispone di una grande cucina a vista, completamente attrezzata con elettrodomestici all'avanguardia e finiture di alta qualità, ideale per chi ama cucinare ed intrattenere. L'ampio soggiorno si apre...

Dettagli immobile

Disponibile dal
Su accordo
Stanze
3
Bagni
3
Parcheggi interni
2
Anno di costruzione
2015
Superficie abitabile
150
Piano
Terra

Caratteristiche

Giardino
Garage
Parcheggio
Ascensore
Arredato

Agenzia

MDA Group Real Estate
Indirizzo:Via Zurigo 34, 6900, Lugano
Ref: VParEmda

Località

Via Guidino, 6900 Paradiso

Fonti