1 / 11

Duplex in affitto - Via Cantonale, 6573 Magadino

3.5 rooms • 152 m² • 75 m² Plot • 3° piano
CHF 750’000.-
CHF 4’934 m²

Perché amerai questa proprietà

Vicino alle Bolle di Magadino

Terrazza e giardino privati

Ristrutturato con finiture moderne

Organizza una visita

Prenota una visita oggi!

Nuovo duplex 3.5 locali a gambarogno

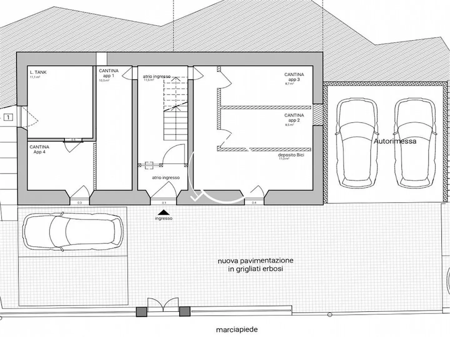
Proponiamo in vendita, nel comune di Magadino/Gambarogno, un appartamento duplex di 3.5 localii situato in prossimità dello splendido parco delle Bolle di Magadino, un'oasi di pace e relax. L'appartamento si trova in una casa plurifamiliare di soli quattro appartamenti, inseriti in un'abitazione storica e signorile, in ottima posizione, con parziale vista lago e vicinanza alla pista ciclabile di Magadino, a soli cinque minuti a piedi dal lago.

La zona comune al piano terra è così composta: quatt...

Dettagli immobile

Disponibile dal
Su accordo
Stanze
3.5
Anno di costruzione
1900
Superficie abitabile
152
Superficie terreno
75
Piano

Caratteristiche

Parcheggio

Agenzia

Zenit Real Estate Sagl
Zenit Real Estate Sagl
Indirizzo:Via S. Balestra, 12, 6900, Lugano
(98 reviews)
Ref: V000531

Località

Via Cantonale, 6573 Magadino

Fonti