Appartamento in vendita - Via Cantonale, 6573 Magadino
Perché amerai questa proprietà
Fascino di un edificio storico
Ampia terrazza pavimentata
Vista parziale sul lago
Organizza una visita
Prenota una visita oggi!
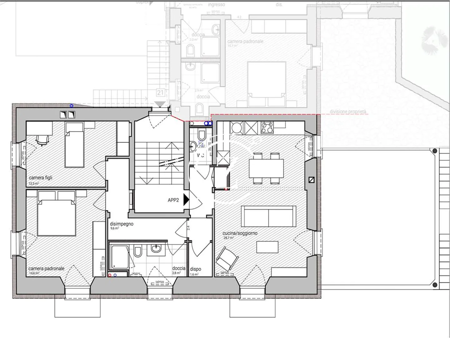
Nuovo appartamento di 3,5 stanze a Gambarogno
Offriamo in vendita un appartamento di 3,5 stanze nel comune di Magadino/Gambarogno, situato vicino al bellissimo parco Bolle di Magadino, un'oasi di pace e relax. L'appartamento si trova in una casa plurifamiliare con sole quattro unità abitative, ospitato in un edificio storico e nobile, in una posizione ottimale, con vista parziale sul lago e vicino alla pista ciclabile di Magadino, a soli cinque minuti a piedi dal lago.
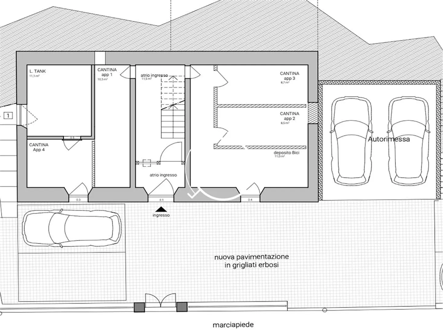
L'area comune al piano terra è composta da: quattro cantine con una sala...
Dettagli immobile
- Disponibile dal
- Su accordo
- Stanze
- 3.5
- Anno di costruzione
- 1900
- Superficie abitabile
- 105 m²




